Project of a traditional house with an attic and a bay window

180 m² total area / 1938 ft² 1 floor 3 bedrooms 2 bathrooms
Project of a traditional house with an attic and a bay window
Click to view

Description

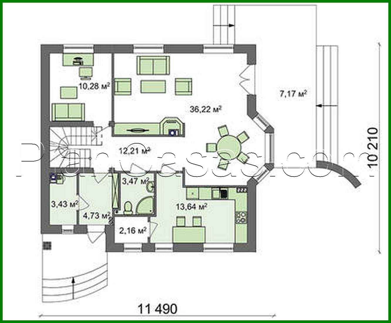
Project of a traditional house with an attic and a bay window Number of floors: 2 Total area: 179.77 m2 Living Area: 103.28 m2 House height: 7.64 m Ceiling Height: 2.80 m Roof Angle: 35 ° Roof Area: 175.75 m2 Cubic capacity: 569.80 m3 Number of bedrooms: 3 Number of bathrooms: 2 Minimum plot size (length): 18.08 m Minimum plot size (width): 19.48 m Built-up area: 148 m2 Materials: Walls: aerated concrete blocks Overlap: monolithic overlap Roofing: ceramic tile, metal tile, cement-sand tile Foundation: monolithic tape

Interested in this plan?

Contact us to get full blueprints, construction estimate, or adapt this plan to your plot and needs.

Request more information

Visualization gallery