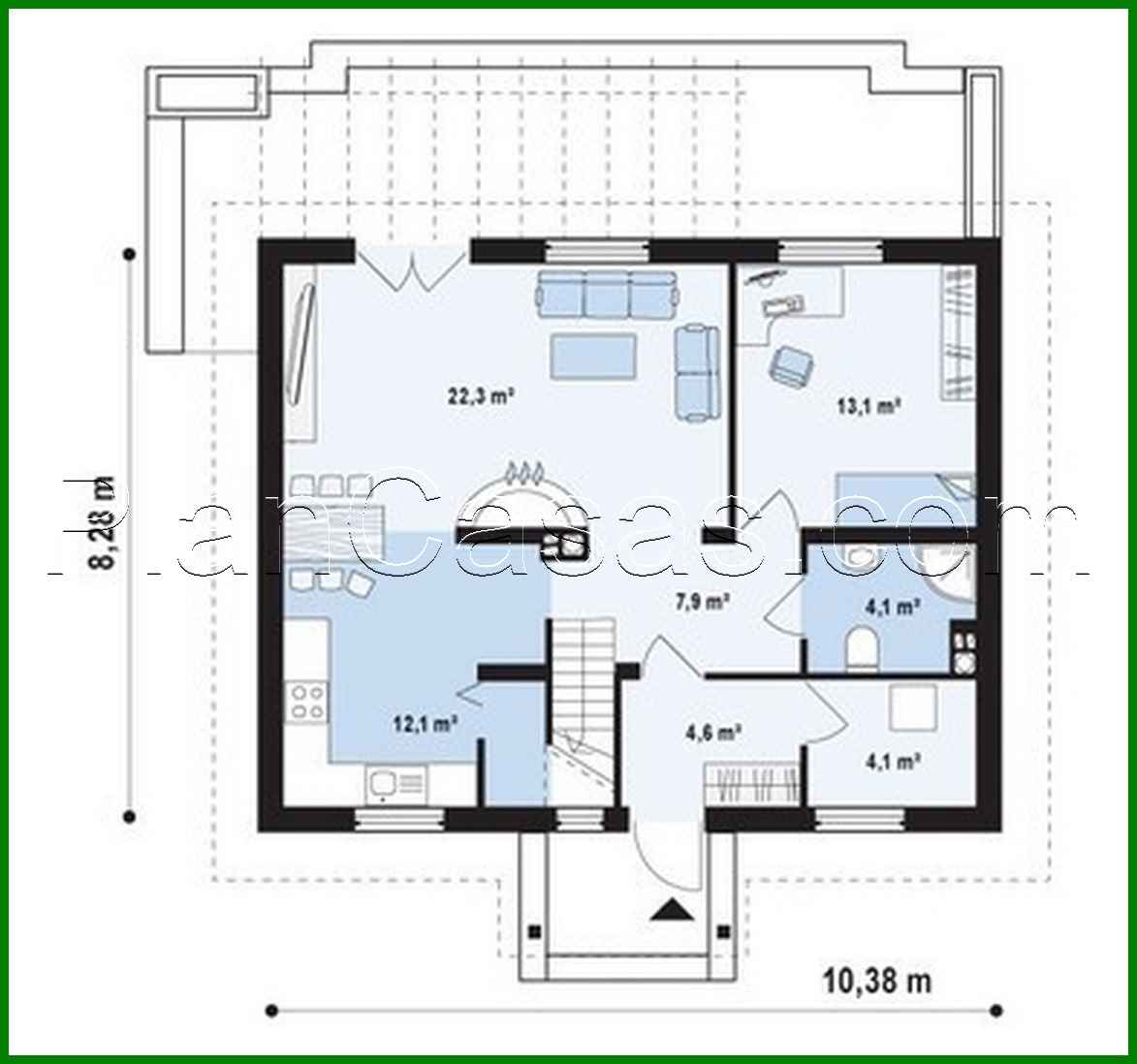
The project of a cozy house with an additional bedroom

135 m² total area / 1453 ft² 1 floor 4 bedrooms 2 bathrooms
The project of a cozy house with an additional bedroom
Click to view

Description

The project of a cozy house with an additional bedroom Number of floors: 2 Total area: 135.00 m2 Living Area: 110.00 m2 House height: 7.00 m Ceiling Height: 2.80 m Roof Angle: 38 ° Roof area: 132.00 m2 Cubic capacity: 309.00 m3 Number of bedrooms: 4 Number of bathrooms: 2 Minimum plot size (length): 16.28 m Minimum plot size (width): 16.38 m Materials: Walls: aerated concrete, ceramic blocks Overlap: monolithic overlap Roofing: ceramic tile, metal tile, cement-sand tile Foundation: monolithic tape band

Interested in this plan?

Contact us to get full blueprints, construction estimate, or adapt this plan to your plot and needs.

Request more information

Visualization gallery