The project of a cozy house with a living area

157 m² total area / 1690 ft² 2 floors 3 bedrooms 2 bathrooms
The project of a cozy house with a living area
Click to view

Description

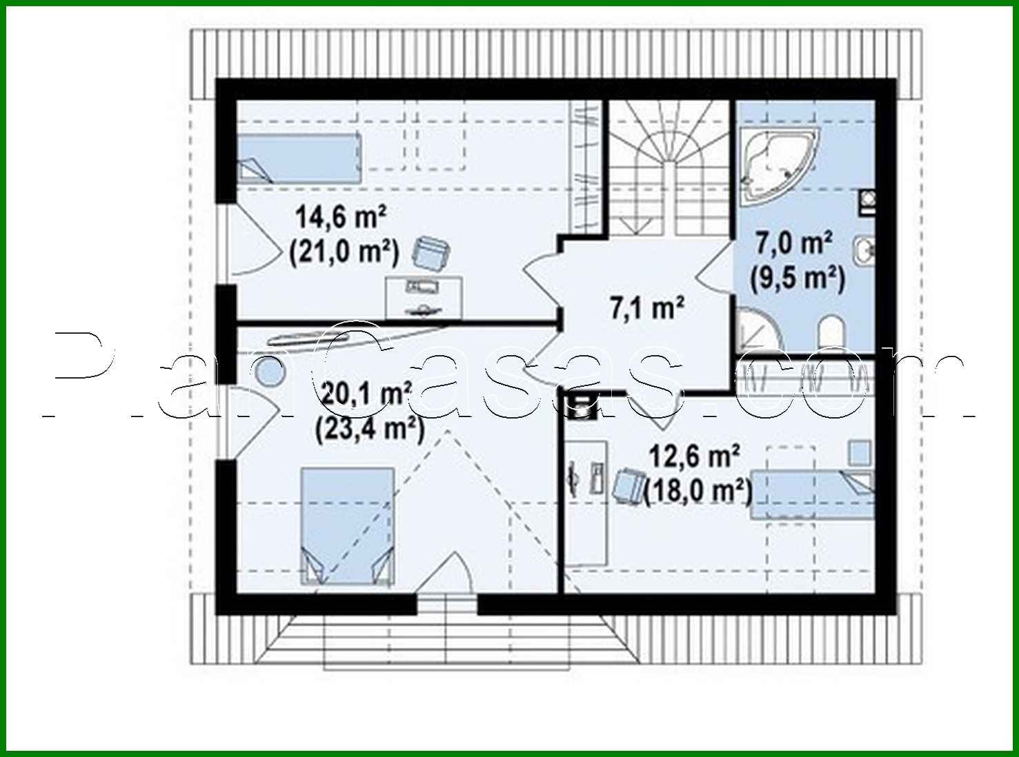
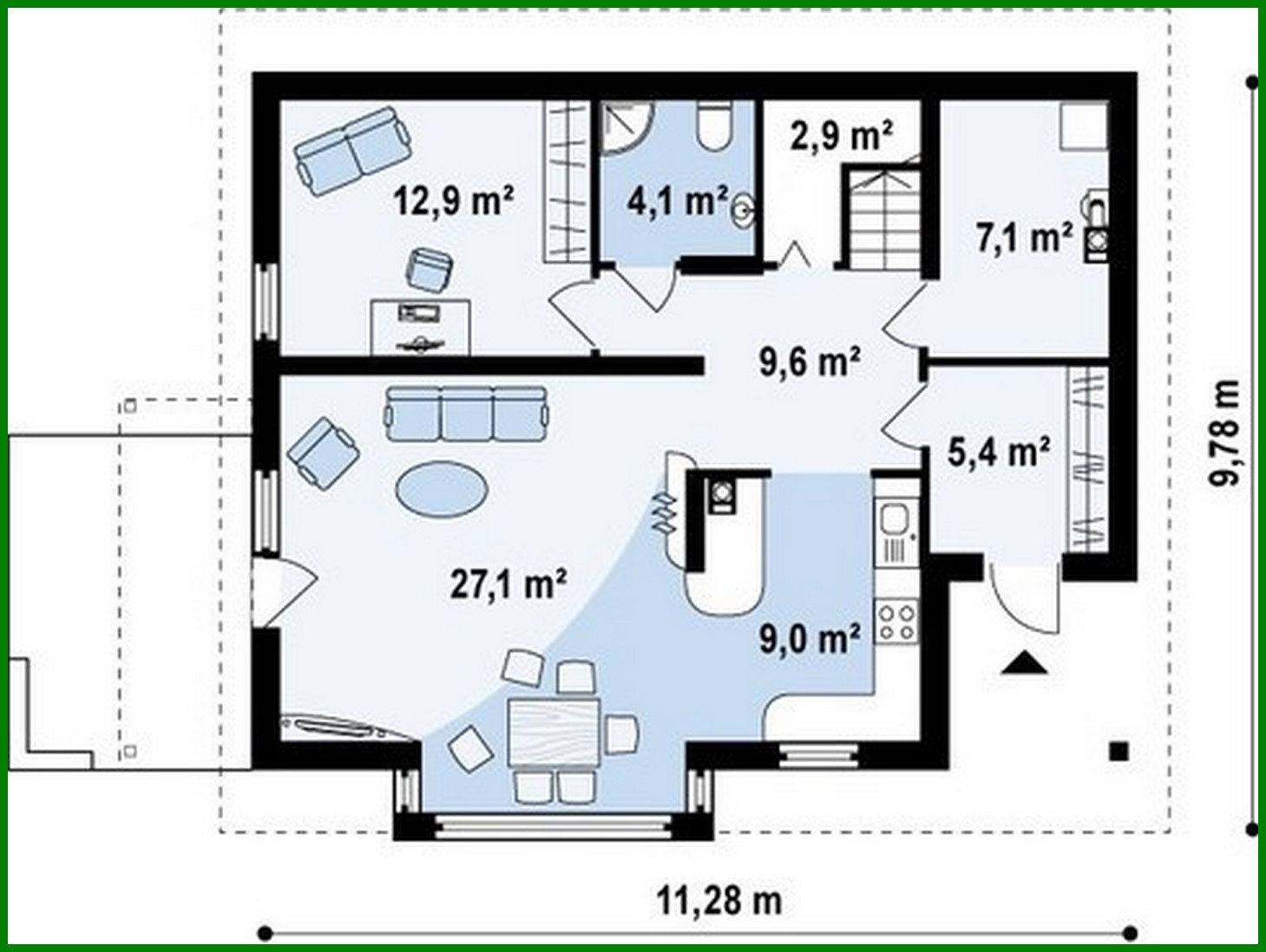
The project of a cozy house with a living area Number of floors: 2 Total area: 157.20 m2 Living Area: 139.50 m2 House height: 7.40 m Ceiling Height: 2.80 m Roof Angle: 35 ° Roof area: 150.00 m2 Cubature: 378.30 m3 Number of bedrooms: 3 Number of bathrooms: 2 Minimum plot size (length): 16.78 m Minimum plot size (width): 18.28 m Materials: Walls: aerated concrete, ceramic blocks Overlap: monolithic overlap Roofing: metal tile, ceramic tile, bitumen Foundation: monolithic tape

Interested in this plan?

Contact us to get full blueprints, construction estimate, or adapt this plan to your plot and needs.

Request more information

Visualization gallery