A project of a bright comfortable country cottage with an attic and a garage

192 m² total area / 2067 ft² 1 floor 3 bedrooms 3 bathrooms
A project of a bright comfortable country cottage with an attic and a garage
Click to view

Description

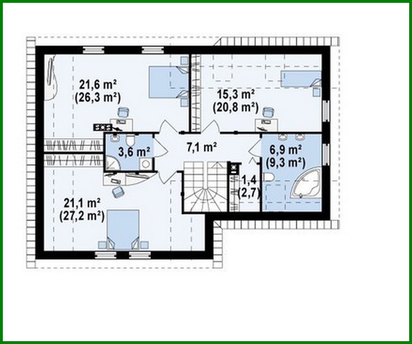
A project of a bright comfortable country cottage with an attic and a garage Number of floors: 2 Total area: 192.20 m2 Living Area: 144.90 m2 House height: 7.72 m Ceiling Height: 2.80 m Roof Angle: 40 ° Roof area: 187.00 m2 Cubature: 478.70 m3 Number of bedrooms: 3 Number of bathrooms: 3 Garage: Garage for one car Minimum plot size (length): 17.00 m Minimum plot size (width): 20.00 m Materials: Walls: aerated concrete, ceramic blocks Overlap: monolithic overlap Roofing: ceramic tile, metal tile, cement-sand tile Foundation: monolithic tape band

Interested in this plan?

Contact us to get full blueprints, construction estimate, or adapt this plan to your plot and needs.

Request more information

Visualization gallery