House project with living room, side terrace and extra bedroom

178 m² total area / 1916 ft² 2 floors 3 bedrooms 2 bathrooms
House project with living room, side terrace and extra bedroom
Click to view

Description

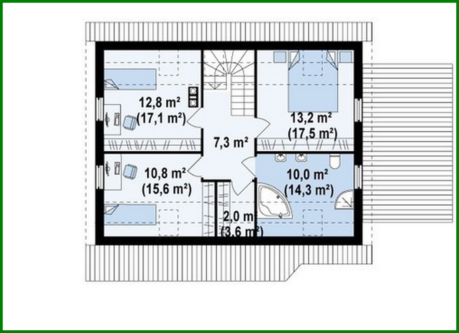
House project with living room, side terrace and extra bedroom Number of floors: 2 Total area: 178.00 m2 Living Area: 137.00 m2 House height: 7.72 m Ceiling Height: 2.80 m Roof Angle: 40 ° Roof area: 189.00 m2 Cubic capacity: 436.20 m3 Number of bedrooms: 3 Number of bathrooms: 2 Garage: Garage for one car Minimum plot size (length): 21.00 m Minimum plot size (width): 17.00 m Materials: Walls: aerated concrete, ceramic blocks Overlap: monolithic overlap Roofing: ceramic tile, metal tile, cement-sand tile Foundation: monolithic tape band

Interested in this plan?

Contact us to get full blueprints, construction estimate, or adapt this plan to your plot and needs.

Request more information

Visualization gallery