The project of a cottage with a bay window in the dining room

118 m² total area / 1270 ft² 2 floors 4 bedrooms 2 bathrooms
The project of a cottage with a bay window in the dining room
Click to view

Description

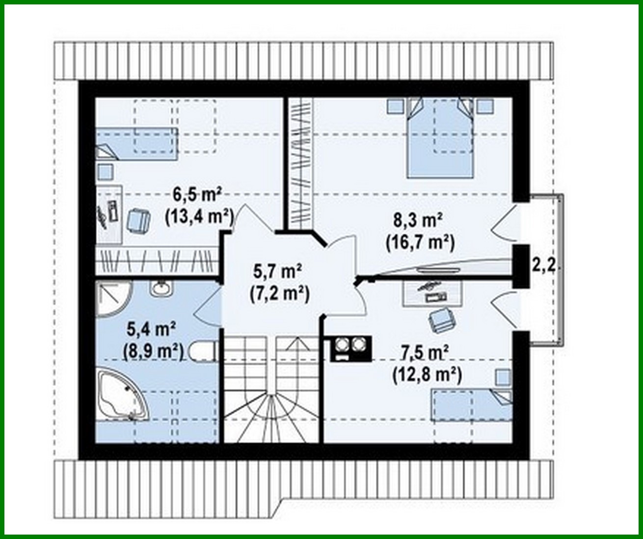
The project of a cottage with a bay window in the dining room Number of floors: 2 Total area: 118.00 m2 Living Area: 96.00 m2 House height: 7.14 m Ceiling Height: 2.80 m Roof Angle: 40 ° Roof area: 127.00 m2 Cubic capacity: 275.00 m3 Number of bedrooms: 4 Number of bathrooms: 2 Minimum plot size (length): 15.00 m Minimum plot size (width): 17.00 m Materials: Walls: aerated concrete, ceramic blocks Overlap: monolithic overlap Roofing: ceramic tile, metal tile, cement-sand tile Foundation: monolithic tape band

Interested in this plan?

Contact us to get full blueprints, construction estimate, or adapt this plan to your plot and needs.

Request more information

Visualization gallery