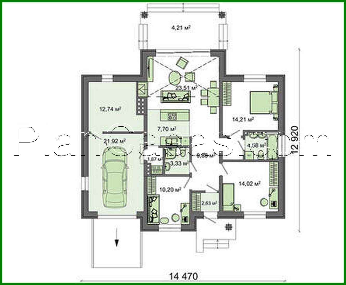
The project is an interesting house with an area of 130 square meters. m in chocolate shades

131 m² total area / 1410 ft² 1 floor 3 bedrooms 2 bathrooms
The project is an interesting house with an area of 130 square meters. m in chocolate shades
Click to view

Description

The project is an interesting house with an area of 130 square meters. m in chocolate shades Number of floors: 1 Total area: 130.80 m2 Living Area: 61.94 m2 House height: 6.73 m Ceiling Height: 2.80 m Roof Angle: 30 ° Roof area: 205.50 m2 Number of bedrooms: 3 Number of bathrooms: 2 Garage: Garage for one car Minimum plot size (length): 19.50 m Minimum plot size (width): 18.50 m Built-up area: 203.8 m2 Materials: Walls: aerated concrete blocks Ceiling: on wooden beams Roofing: metal tile, ceramic tile, bitumen Foundation: monolithic tape

Interested in this plan?

Contact us to get full blueprints, construction estimate, or adapt this plan to your plot and needs.

Request more information

Visualization gallery