The project of a cottage with an attic and bay window with an area of 289 sq.m

290 m² total area / 3122 ft² 2 floors 4 bedrooms 3 bathrooms
The project of a cottage with an attic and bay window with an area of 289 sq.m
Click to view

Description

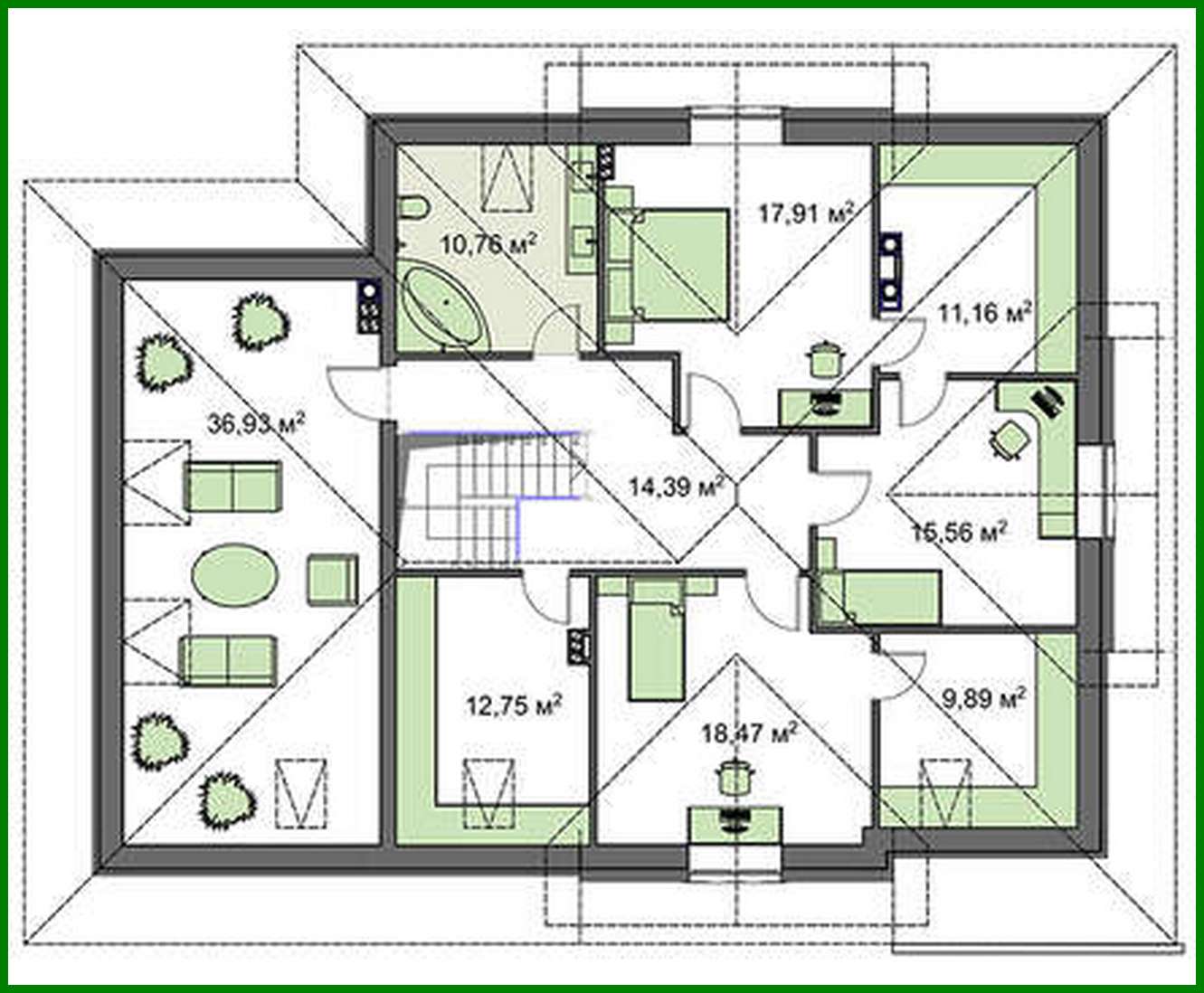
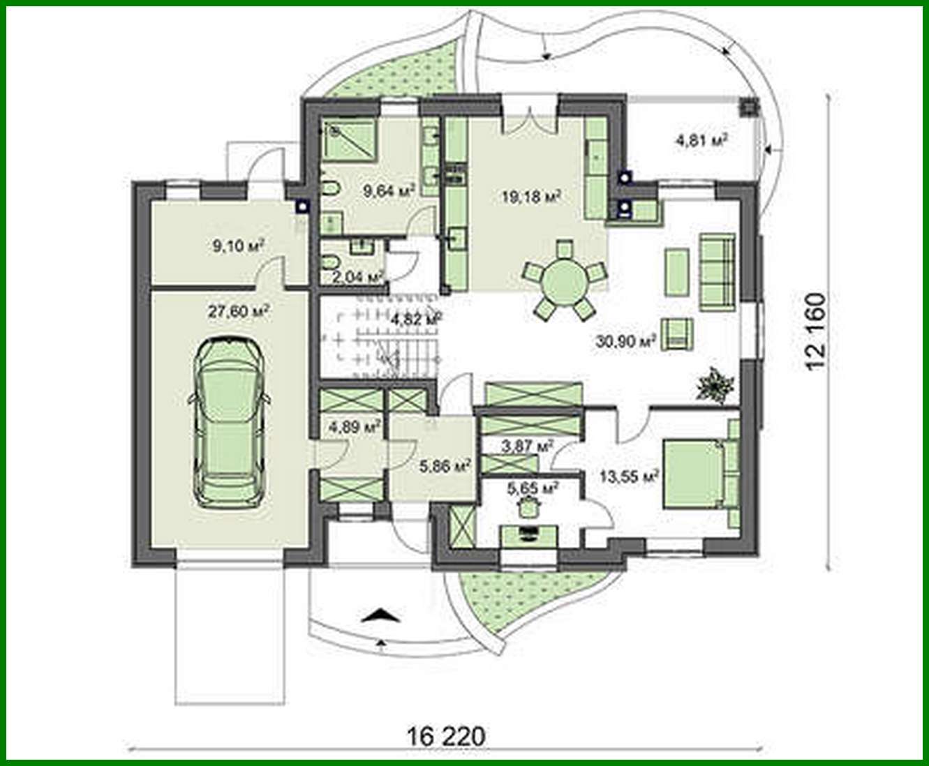
The project of a cottage with an attic and bay window with an area of 289 sq.m Number of floors: 2 Total area: 289.73 m2 Living Area: 138.97 m2 House height: 9.42 m Ceiling Height: 2.80 m Roof Angle: 40 ° Roof area: 325.00 m2 Number of bedrooms: 4 Number of bathrooms: 3 Garage: Garage for one car Minimum plot size (length): 20.50 m Minimum plot size (width): 24.50 m Built-up area: 229.5 m2 Materials: Walls: aerated concrete blocks Overlap: monolithic overlap Roofing: metal tile, ceramic tile, bitumen Foundation: monolithic slab

Interested in this plan?

Contact us to get full blueprints, construction estimate, or adapt this plan to your plot and needs.

Request more information

Visualization gallery