Plan of a compact European-style house with an area of 147 square meters. m, decorated with natural stone

148 m² total area / 1593 ft² 2 floors 4 bedrooms 2 bathrooms
Plan of a compact European-style house with an area of 147 square meters. m, decorated with natural stone
Click to view

Description

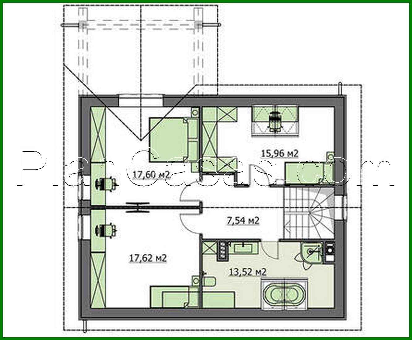
Plan of a compact European-style house with an area of 147 square meters. m, decorated with natural stone Number of floors: 2 Total area: 147.91 m2 Living Area: 94.63 m2 House height: 7.75 m Ceiling Height: 2.80 m Roof Angle: 40 ° Roof area: 175.11 m2 Number of bedrooms: 4 Number of bathrooms: 2 Minimum plot size (length): 17.00 m Minimum plot size (width): 19.00 m Built-up area: 114.15 m2 Materials: Walls: aerated concrete blocks Overlap: monolithic overlap Roofing: metal tile, ceramic tile, bitumen Foundation: monolithic tape

Interested in this plan?

Contact us to get full blueprints, construction estimate, or adapt this plan to your plot and needs.

Request more information

Visualization gallery