Classic beautiful cottage with a cute balcony

239 m² total area / 2573 ft² 2 floors 5 bedrooms 2 bathrooms
Classic beautiful cottage with a cute balcony
Click to view

Description

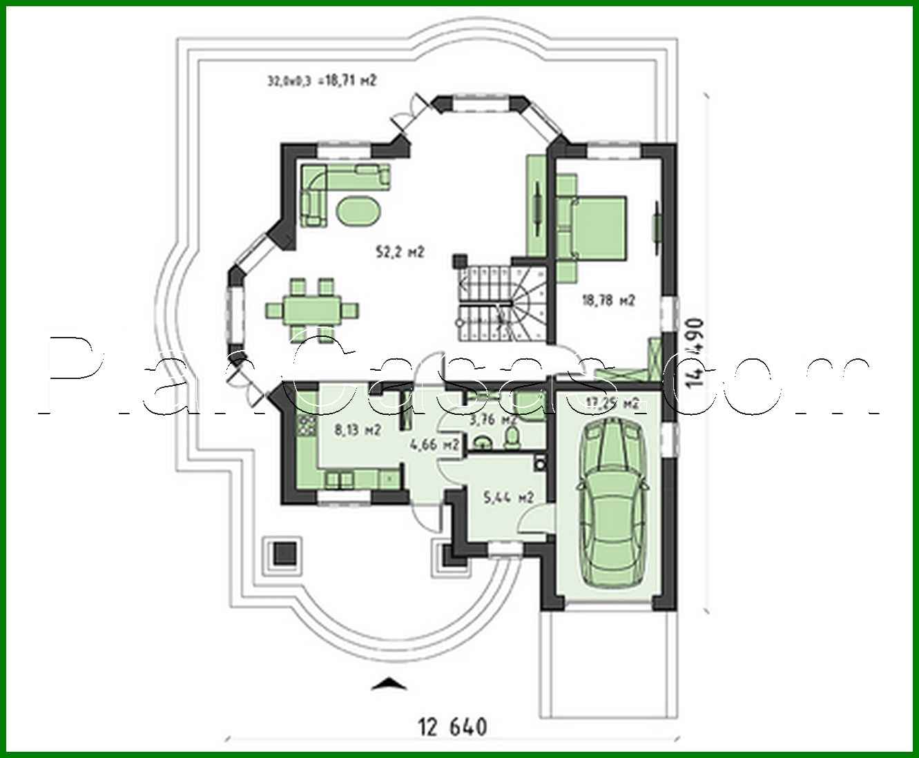
Classic beautiful cottage with a cute balcony Number of floors: 2 Total area: 238.84 m2 Living Area: 153.46 m2 House height: 8.40 m Ceiling Height: 2.80 m Roof Angle: 40 ° Roof Area: 189.95 m2 Number of bedrooms: 5 Number of bathrooms: 2 Garage: Garage for one car Minimum plot size (length): 18.00 m Minimum plot size (width): 17.00 m Built-up area: 227.93 m2 Materials: Walls: aerated concrete blocks Overlap: monolithic overlap Roofing: metal tile, ceramic tile Foundation: monolithic tape

Interested in this plan?

Contact us to get full blueprints, construction estimate, or adapt this plan to your plot and needs.

Request more information

Visualization gallery