The project of a simple one-story cottage with an attic

120 m² total area / 1292 ft² 1 floor 3 bedrooms 1 bathroom
The project of a simple one-story cottage with an attic
Click to view

Description

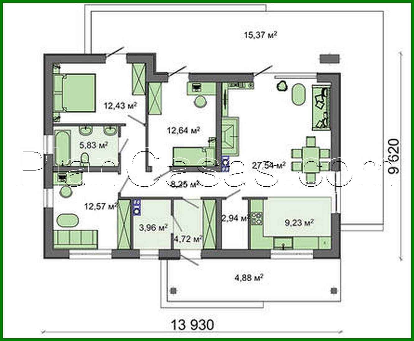
The project of a simple one-story cottage with an attic Number of floors: 1 Total area: 120.36 m2 Living Area: 65.20 m2 House height: 7.00 m Ceiling Height: 2.80 m Roof Angle: 30 ° Roof area: 170.00 m2 Cubic capacity: 264.40 m3 Number of bedrooms: 3 Number of bathrooms: 1 Minimum plot size (length): 17.54 m Minimum plot size (width): 21.85 m Built-up area: 199.65 m2 Materials: Walls: aerated concrete blocks Ceiling: on wooden beams Roofing: metal tile, ceramic tile, bitumen Foundation: monolithic tape

Interested in this plan?

Contact us to get full blueprints, construction estimate, or adapt this plan to your plot and needs.

Request more information

Visualization gallery