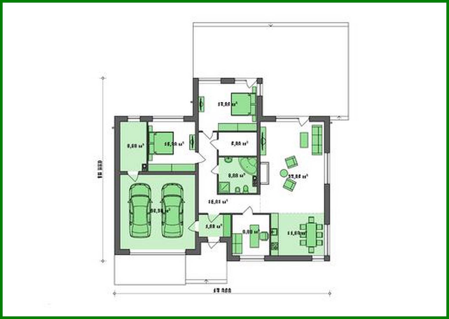
Architectural project of a one-story house with a flat roof

196 m² total area / 2110 ft² 1 floor 3 bedrooms 1 bathroom
Architectural project of a one-story house with a flat roof
Click to view

Description

Architectural project of a one-story house with a flat roof Number of floors: 1 Total area: 196.00 m2 Living Area: 80.00 m2 Ceiling Height: 2.80 m Roof Angle: 2 ° Roof area: 107.00 m2 Number of bedrooms: 3 Number of bathrooms: 1 Garage: Two-car garage Built-up area: 297 m2 Materials: Walls: aerated concrete, ceramic blocks Overlap: monolithic overlap Roofing: PVC membrane Foundation: monolithic tape

Interested in this plan?

Contact us to get full blueprints, construction estimate, or adapt this plan to your plot and needs.

Request more information

Visualization gallery