The project of a compact two-story cottage with an area of 174 square meters. m with black and white exterior

173 m² total area / 1862 ft² 2 floors 3 bedrooms 3 bathrooms
The project of a compact two-story cottage with an area of 174 square meters. m with black and white exterior
Click to view

Description

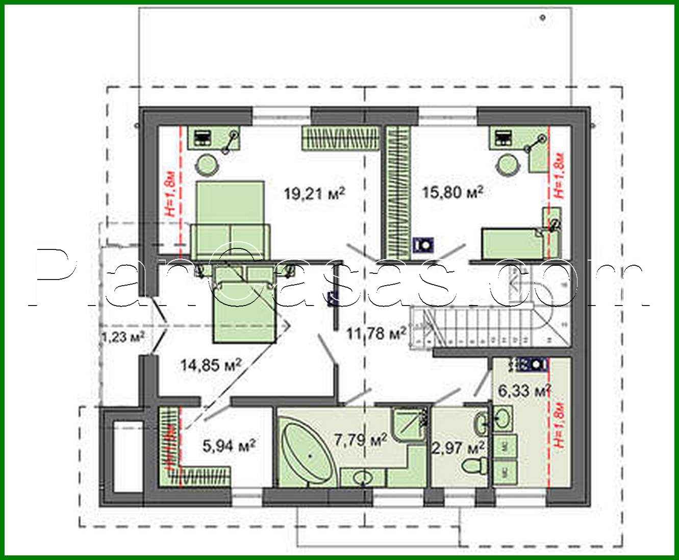
The project of a compact two-story cottage with an area of 174 square meters. m with black and white exterior Number of floors: 2 Total area: 173.18 m2 Living Area: 87.90 m2 House height: 9.76 m Ceiling Height: 2.80 m Roof Angle: 42 ° Roof area: 241.00 m2 Number of bedrooms: 3 Number of bathrooms: 3 Minimum plot size (length): 21.00 m Minimum plot size (width): 21.00 m Built-up area: 158.36 m2 Materials: Walls: aerated concrete blocks Overlap: monolithic overlap Roofing: metal Foundation: monolithic tape

Interested in this plan?

Contact us to get full blueprints, construction estimate, or adapt this plan to your plot and needs.

Request more information

Visualization gallery