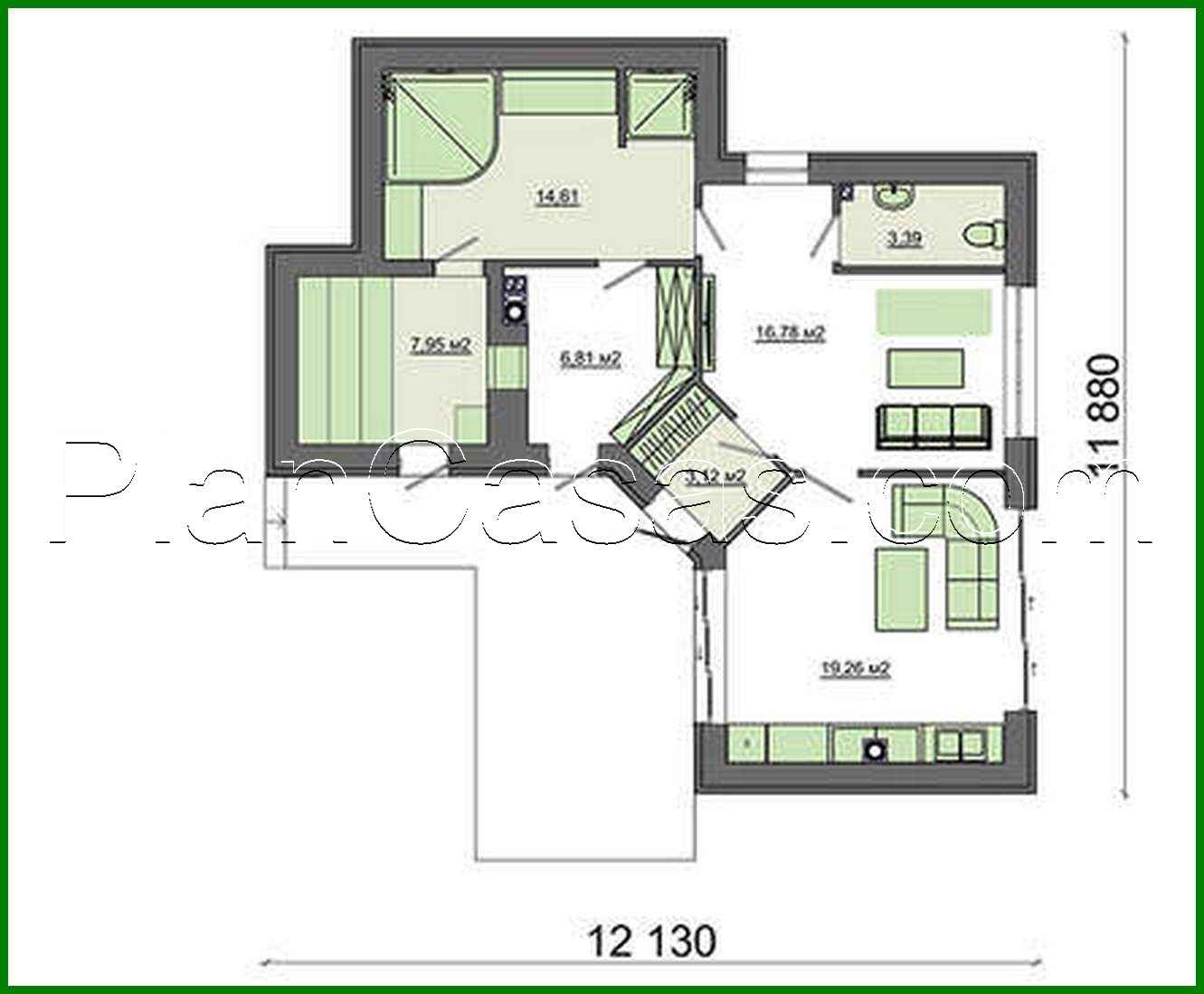
Beautiful small house with pool

72 m² total area / 775 ft² 1 floor bedrooms 2 bathrooms
Beautiful small house with pool
Click to view

Description

Number of floors: 1 Total area: 71.92 m2 House height: 3.20 m Ceiling Height: 2.80 m Roof Angle: 1.5 ° Roof area: 76.00 m2 Number of bathrooms: 2 Built-up area: 98.07 m2 Materials: Walls: aerated concrete blocks Overlap: monolithic overlap Roofing: PVC membrane Foundation: monolithic tape band

Interested in this plan?

Contact us to get full blueprints, construction estimate, or adapt this plan to your plot and needs.

Request more information

Visualization gallery