Small house project

69 m² total area / 743 ft² 1 floor bedrooms 1 bathroom
Small house project
Click to view

Description

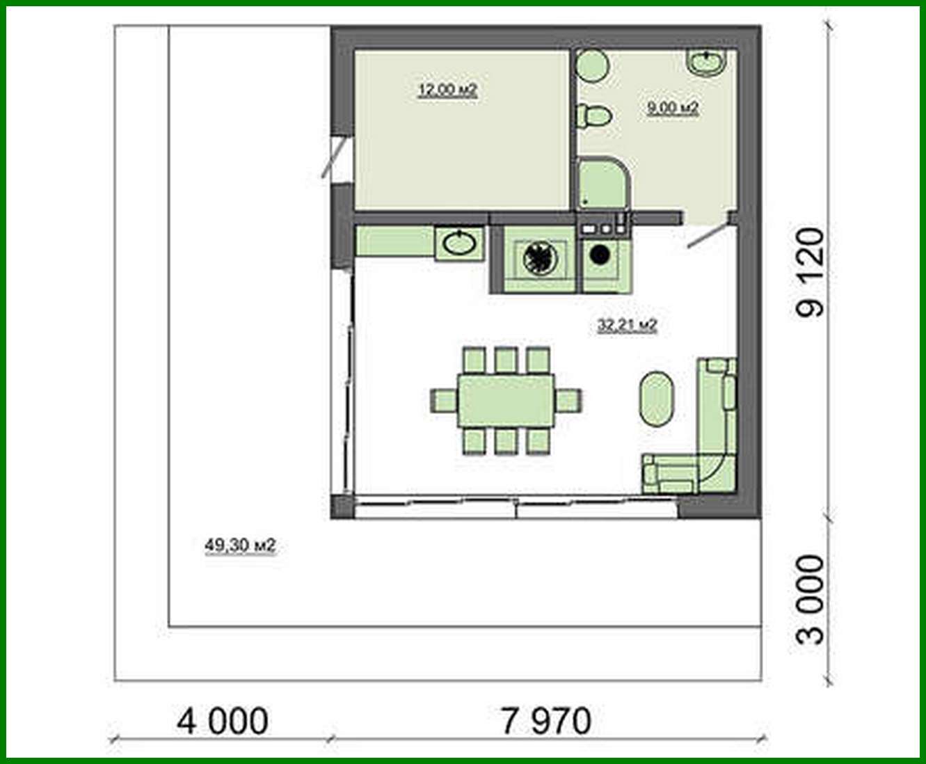
Number of floors: 1 Total area: 68.67 m2 House height: 5.05 m Ceiling Height: 2.80 m Roof Angle: 20 ° Roof area: 101.00 m2 Number of bathrooms: 1 Built-up area: 145.08 m2 Materials: Walls: aerated concrete blocks Ceiling: on wooden beams Roofing: metal tile, ceramic tile, bitumen Foundation: monolithic tape544. Small house project

Interested in this plan?

Contact us to get full blueprints, construction estimate, or adapt this plan to your plot and needs.

Request more information

Visualization gallery