The project of a country house of 74 sq.m for a comfortable stay

74 m² total area / 797 ft² 1 floor bedrooms 2 bathrooms
The project of a country house of 74 sq.m for a comfortable stay
Click to view

Description

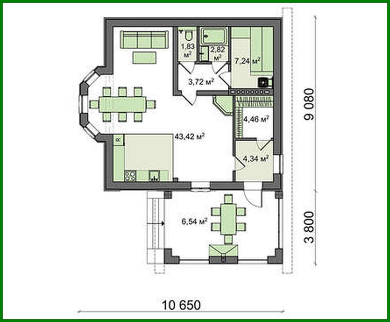
The project of a country house of 74 sq.m for a comfortable stay Number of floors: 1 Total area: 74.37 m2 House height: 5.98 m Ceiling Height: 2.80 m Roof Angle: 20/28 ° Roof Area: 156.50 m2 Number of bathrooms: 2 Minimum plot size (length): 21.00 m Minimum plot size (width): 19.00 m Built-up area: 116.44 m2 Materials: Walls: Aerated concrete blocks, brick Overlap: monolithic overlap Roof: shingles Foundation: monolithic slab

Interested in this plan?

Contact us to get full blueprints, construction estimate, or adapt this plan to your plot and needs.

Request more information

Visualization gallery