The project of a two-story house for a large family with an area of 188 square meters with four bedrooms

189 m² total area / 2034 ft² 2 floors 4 bedrooms 3 bathrooms
The project of a two-story house for a large family with an area of 188 square meters with four bedrooms
Click to view

Description

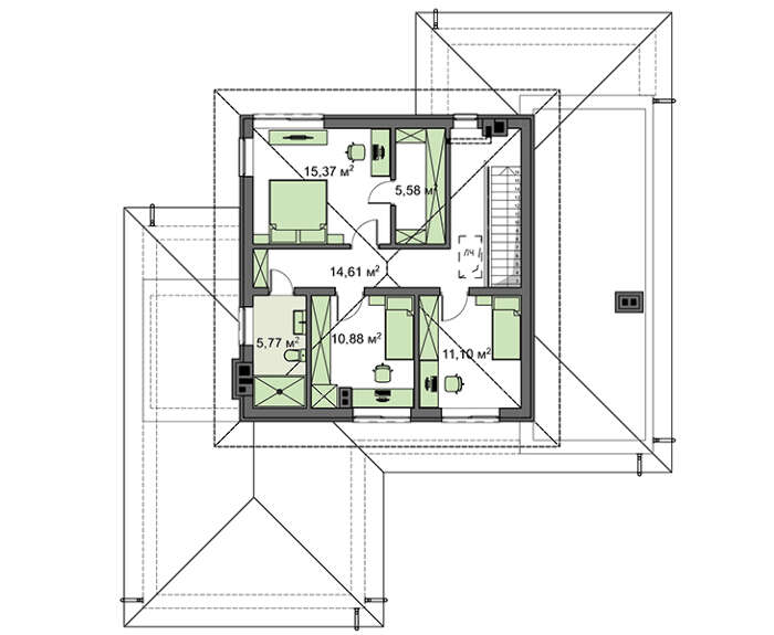
538. The project of a two-story house for a large family with an area of 188 square meters with four bedrooms Number of floors: 2 Total area: 188.81 m2 Living Area: 100.24 m2 House height: 9.08 m Ceiling Height: 2.80 m Roof Angle: 25 ° Roof area: 303.13 m2 Number of bedrooms: 4 Number of bathrooms: 3 Minimum plot size (length): 24.00 m Minimum plot size (width): 27.00 m Built-up area: 260.48 m2 Materials: Walls: aerated concrete blocks Overlap: monolithic overlap Roof: shingles Foundation: monolithic tape

Interested in this plan?

Contact us to get full blueprints, construction estimate, or adapt this plan to your plot and needs.

Request more information

Visualization gallery