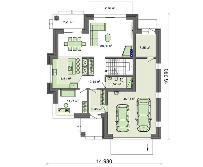
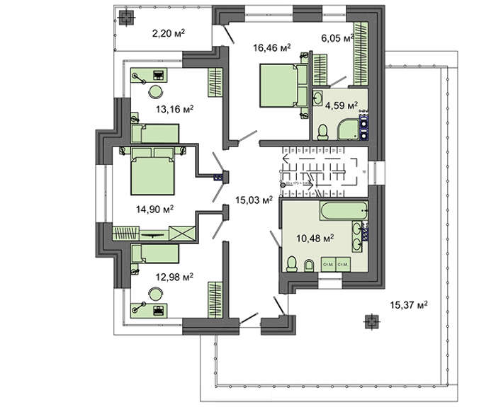
The project of a two-story brick house with an area of 262 square meters with modern balconies

262 m² total area / 2820 ft² 2 floors 5 bedrooms 3 bathrooms
The project of a two-story brick house with an area of 262 square meters with modern balconies
Click to view

Description

The project of a two-story brick house with an area of 262 square meters. m with modern balconies Number of floors: 2 Total area: 262.27 m2 Living Area: 107.77 m2 House height: 9.94 m Ceiling Height: 3.00 m Roof Angle: 25 ° Roof area: 225.50 m2 Number of bedrooms: 5 Number of bathrooms: 3 Garage: Two-car garage Minimum plot size (length): 24.50 m Minimum plot size (width): 23.00 m Built-up area: 245.95 m2 Materials: Walls: brick Overlap: monolithic overlap Roofing: metal tile, ceramic tile, bitumen Foundation: monolithic tape

Interested in this plan?

Contact us to get full blueprints, construction estimate, or adapt this plan to your plot and needs.

Request more information

Visualization gallery