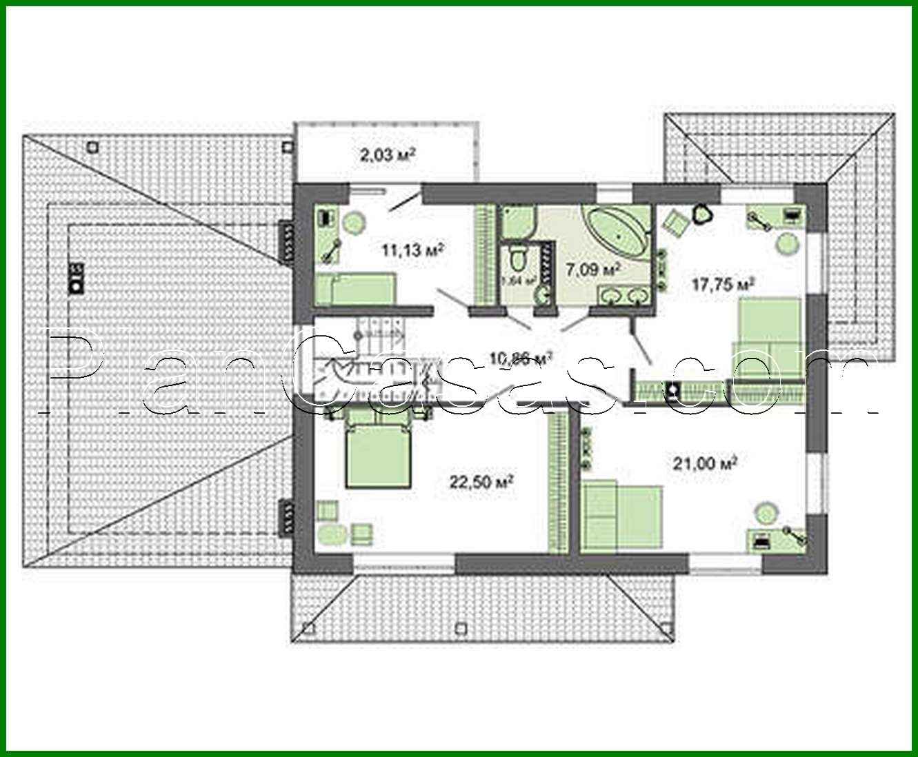
Plan of a huge cottage with a basement with a total area of 285 square meters

284 m² total area / 3057 ft² 2 floors 5 bedrooms 3 bathrooms
Plan of a huge cottage with a basement with a total area of 285 square meters
Click to view

Description

Plan of a huge cottage with a basement with a total area of 285 square meters. m Number of floors: 3 Total area: 284.32 m2 Living Area: 126.99 m2 House height: 9.76 m Ceiling Height: 2.80 m Roof Angle: 30/22 ° Roof area: 250.50 m2 Number of bedrooms: 5 Number of bathrooms: 3 Garage: Two-car garage Minimum plot size (length): 30.50 m Minimum plot size (width): 19.00 m Built-up area: 270.24 m2 Ground floor area: 66.31 m2 Materials: Walls: aerated concrete blocks Overlap: monolithic overlap Roofing: metal Foundation: monolithic tape

Interested in this plan?

Contact us to get full blueprints, construction estimate, or adapt this plan to your plot and needs.

Request more information

Visualization gallery