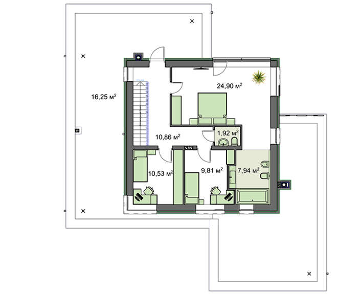
The project of a modern two-story cottage with an area of 250 square meters. m in the style of minimalism

250 m² total area / 2691 ft² 2 floors 5 bedrooms 3 bathrooms
The project of a modern two-story cottage with an area of 250 square meters. m in the style of minimalism
Click to view

Description

The project of a modern two-story cottage with an area of 250 square meters. m in the style of minimalism Number of floors: 2 Total area: 249.92 m2 Living Area: 110.63 m2 House height: 7.28 m Ceiling Height: 2.80 m Roof Angle: 1.7 / 3.5 ° Roof Area: 113.35 m2 Number of bedrooms: 5 Number of bathrooms: 3 Garage: Two-car garage Minimum plot size (length): 23.00 m Minimum plot size (width): 24.00 m Built-up area: 283.3 m2 Materials: Walls: aerated concrete blocks Overlap: monolithic overlap Roofing: PVC membrane Foundation: Piles

Interested in this plan?

Contact us to get full blueprints, construction estimate, or adapt this plan to your plot and needs.

Request more information

Visualization gallery