Project of a stylish two-story residential building with a beautiful balcony

216 m² total area / 2325 ft² 2 floors 4 bedrooms 3 bathrooms
Project of a stylish two-story residential building with a beautiful balcony
Click to view

Description

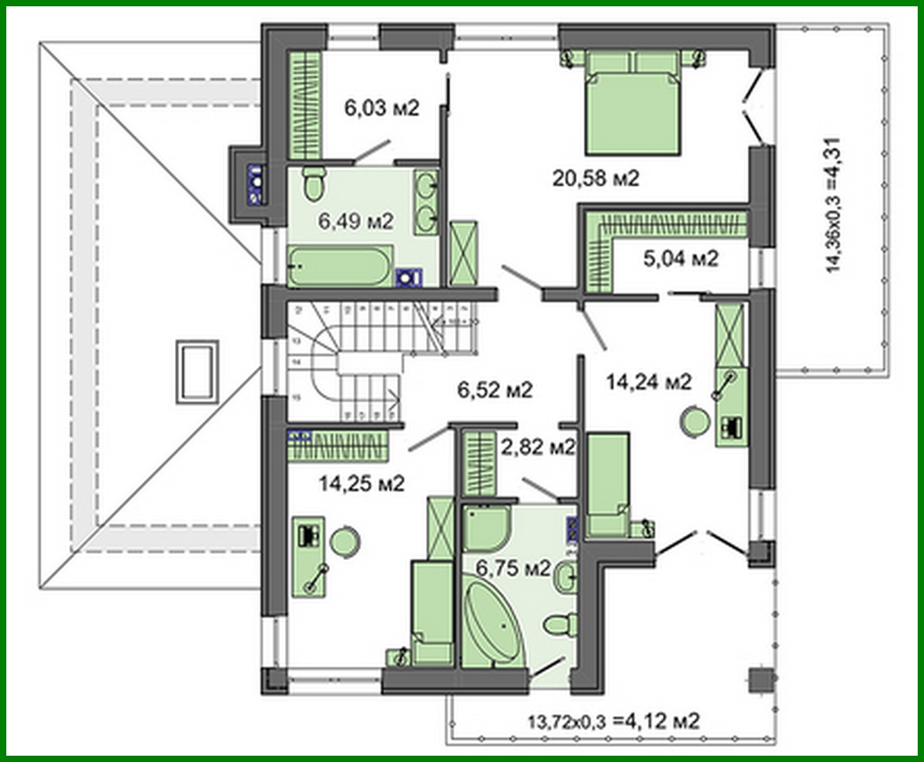
Project of a stylish two-story residential building with a beautiful balcony Number of floors: 2 Total area: 216.00 m2 Living Area: 108.00 m2 House height: 9.24 m Ceiling Height: 2.80 m Roof Angle: 24 ° Roof area: 230.00 m2 Number of bedrooms: 4 Number of bathrooms: 3 Garage: Garage for one car Minimum plot size (length): 19.00 m Minimum plot size (width): 18.00 m Built-up area: 212 m2 Materials: Walls: ceramic blocks Overlap: monolithic overlap Roofing: metal tile, ceramic tile, bitumen Foundation: monolithic tape

Interested in this plan?

Contact us to get full blueprints, construction estimate, or adapt this plan to your plot and needs.

Request more information

Visualization gallery