Two-storey beautiful cottage with a unique layout

198 m² total area / 2131 ft² 2 floors 4 bedrooms 2 bathrooms
Two-storey beautiful cottage with a unique layout
Click to view

Description

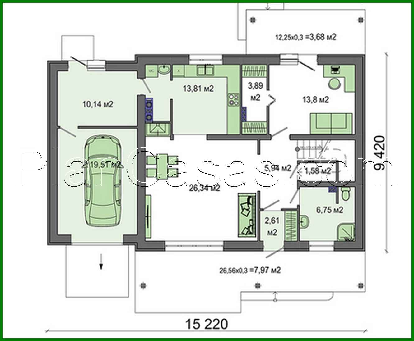
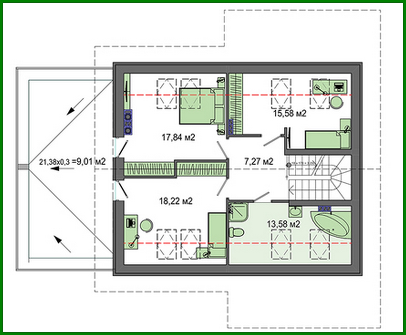
Two-storey beautiful cottage with a unique layout<br data-rich-text-line-break="true" />Number of floors: 2<br data-rich-text-line-break="true" />Total Area: 197.52 m2<br data-rich-text-line-break="true" />Living Area: 91.78 m2<br data-rich-text-line-break="true" />House height: 7.40 m<br data-rich-text-line-break="true" />Ceiling Height: 2.80 m<br data-rich-text-line-break="true" />Roof Angle: 32 °<br data-rich-text-line-break="true" />Roof area: 187.00 m2<br data-rich-text-line-break="true" />Number of bedrooms: 4<br data-rich-text-line-break="true" />Number of bathrooms: 2<br data-rich-text-line-break="true" />Garage: Garage for one car<br data-rich-text-line-break="true" />Minimum plot size (length): 20.00 m<br data-rich-text-line-break="true" />Minimum plot size (width): 15.00 m<br data-rich-text-line-break="true" />Built-up area: 192.69 m2<br data-rich-text-line-break="true" />Materials:<br data-rich-text-line-break="true" />Walls: aerated concrete blocks<br data-rich-text-line-break="true" />Overlap: monolithic overlap<br data-rich-text-line-break="true" />Roof: shingles<br data-rich-text-line-break="true" />Foundation: monolithic slab

Interested in this plan?

Contact us to get full blueprints, construction estimate, or adapt this plan to your plot and needs.

Request more information

Visualization gallery