Beautiful Project of a two-storey house with luxury apartments for the owner

273 m² total area / 2939 ft² 2 floors 5 bedrooms 4 bathrooms
Beautiful Project of a two-storey house with luxury apartments for the owner
Click to view

Description

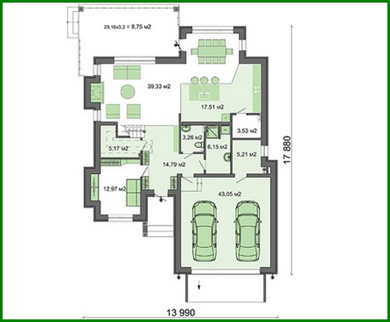
Beautiful Project of a two-storey house with luxury apartments for the owner Number of floors: 2 Total area: 272.76 m2 Living Area: 120.68 m2 House height: 9.78 m Ceiling Height: 3.00 m Roof Angle: 25/18 ° Roof Area: 314.50 m2 Number of bedrooms: 5 Number of bathrooms: 4 Garage: Two-car garage Minimum plot size (length): 22.00 m Minimum plot size (width): 24.00 m Built-up area: 241.16 m2

Interested in this plan?

Contact us to get full blueprints, construction estimate, or adapt this plan to your plot and needs.

Request more information

Visualization gallery