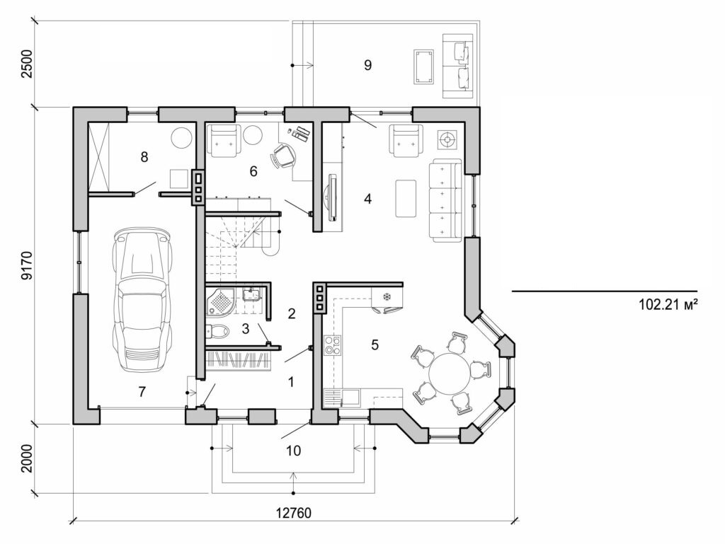
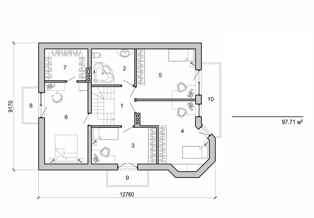
A house with attic

200 m² total area / 2153 ft² 1 floor bedrooms
A house with attic
Click to view

Interested in this plan?

Contact us to get full blueprints, construction estimate, or adapt this plan to your plot and needs.

Request more information

Visualization gallery