The project of a spacious house of complex shape

256 m² total area / 2756 ft² 2 floors 3 bedrooms 2 bathrooms
The project of a spacious house of complex shape
Click to view

Description

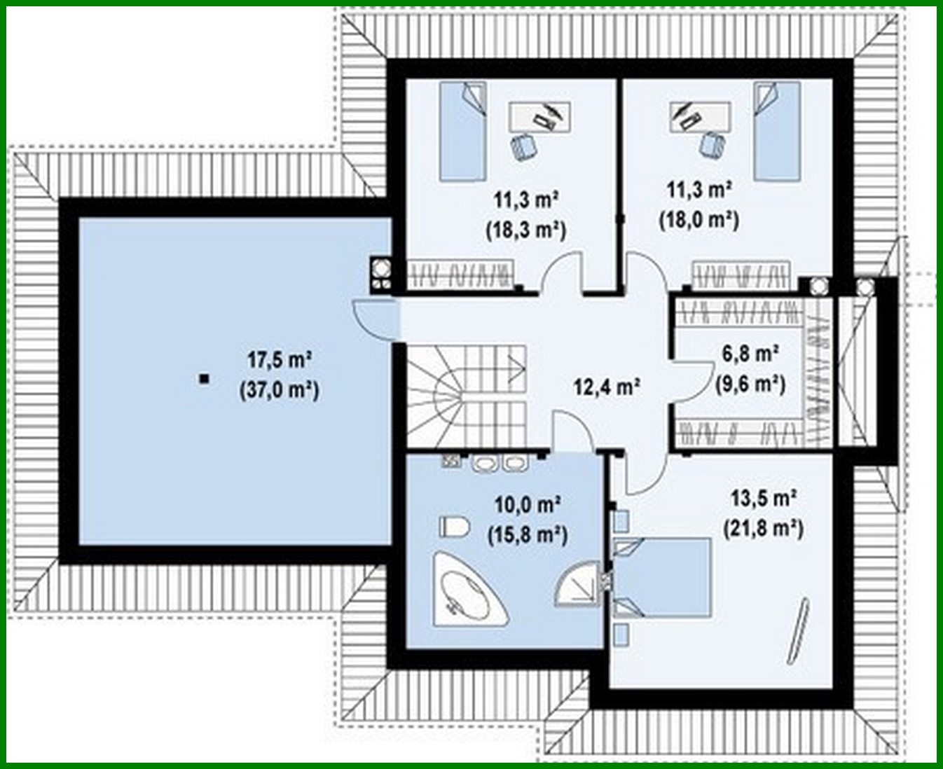
The project of a spacious house of complex shape Number of floors: 2 Total Area: 255.90 m2 Living Area: 188.00 m2 House height: 9.00 m Ceiling Height: 2.80 m Roof Angle: 45 ° Roof area: 309.00 m2 Cubic capacity: 601.00 m3 Number of bedrooms: 3 Number of bathrooms: 2 Garage: Garage for one car Minimum plot size (length): 21.00 m Minimum plot size (width): 24.00 m Materials: Walls: aerated concrete, ceramic blocks Overlap: monolithic overlap Roofing: ceramic tile, metal tile, cement-sand tile Foundation: monolithic tape band

Interested in this plan?

Contact us to get full blueprints, construction estimate, or adapt this plan to your plot and needs.

Request more information

Visualization gallery