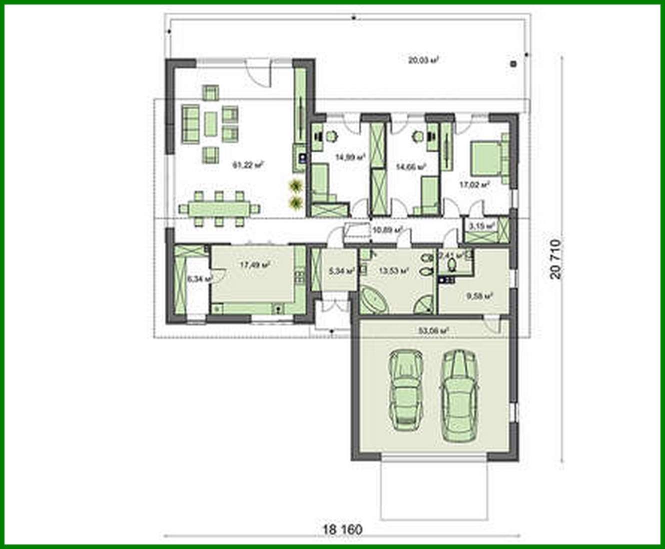
The project of a single-storey house of a simple form with a garage for two cars

250 m² total area / 2691 ft² 1 floor 3 bedrooms 2 bathrooms
The project of a single-storey house of a simple form with a garage for two cars
Click to view

Description

The project of a single-storey house of a simple form with a garage for two cars Number of floors: 1 Total area: 249.71 m2 Living Area: 107.89 m2 House height: 6.85 m Ceiling Height: 2.80 m Roof Angle: 30 ° Roof Area: 331.35 m2 Cubature: 581.00 m3 Number of bedrooms: 3 Number of bathrooms: 2 Garage: Two-car garage Minimum plot size (length): 28.00 m Minimum plot size (width): 25.00 m Built-up area: 373.39 m2 Materials: Walls: aerated concrete blocks Ceiling: on wooden beams Roofing: metal tile, ceramic tile, bitumen Foundation: monolithic tape band

Interested in this plan?

Contact us to get full blueprints, construction estimate, or adapt this plan to your plot and needs.

Request more information

Visualization gallery