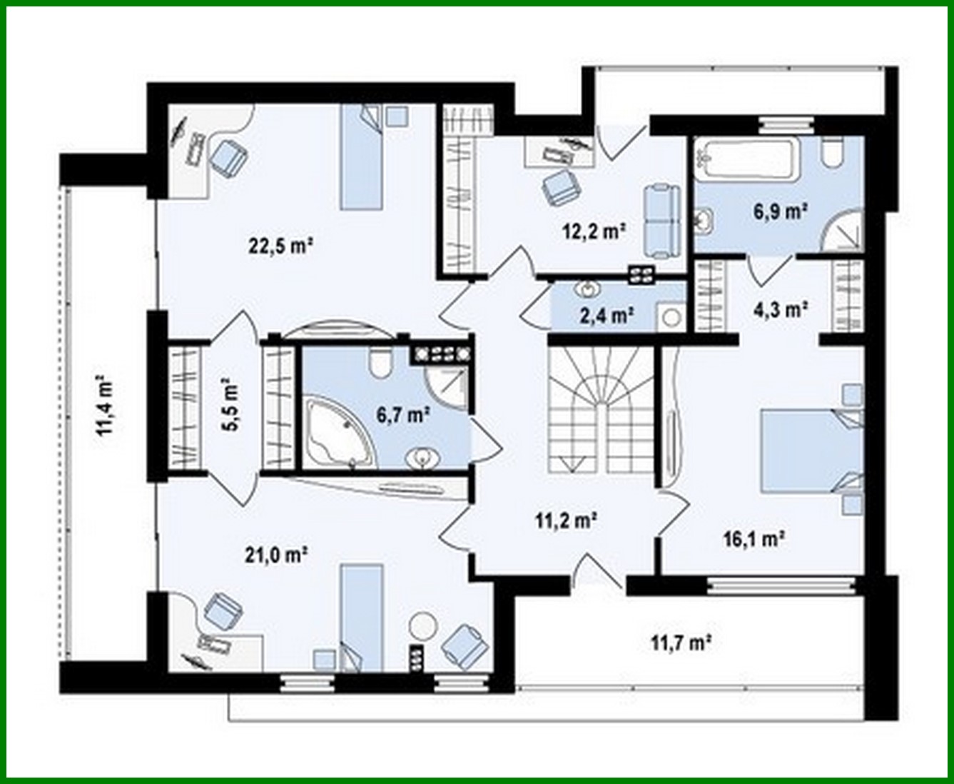
Project of a cottage with an office and a garage

225 m² total area / 2422 ft² 2 floors 5 bedrooms 4 bathrooms
Project of a cottage with an office and a garage
Click to view

Description

Project of a cottage with an office and a garage Number of floors: 2 Total area: 225.40 m2 Living Area: 197.40 m2 House height: 7.69 m Ceiling Height: 2.80 m Roof Angle: 3 ° Roof area: 165.00 m2 Cubic capacity: 649.00 m3 Number of bedrooms: 5 Number of bathrooms: 4 Garage: Garage for one car Minimum plot size (length): 23.24 m Minimum plot size (width): 19.34 m Materials: Walls: aerated concrete, ceramic blocks Overlap: monolithic overlap Roofing: PVC membrane Foundation: monolithic tape band

Interested in this plan?

Contact us to get full blueprints, construction estimate, or adapt this plan to your plot and needs.

Request more information

Visualization gallery