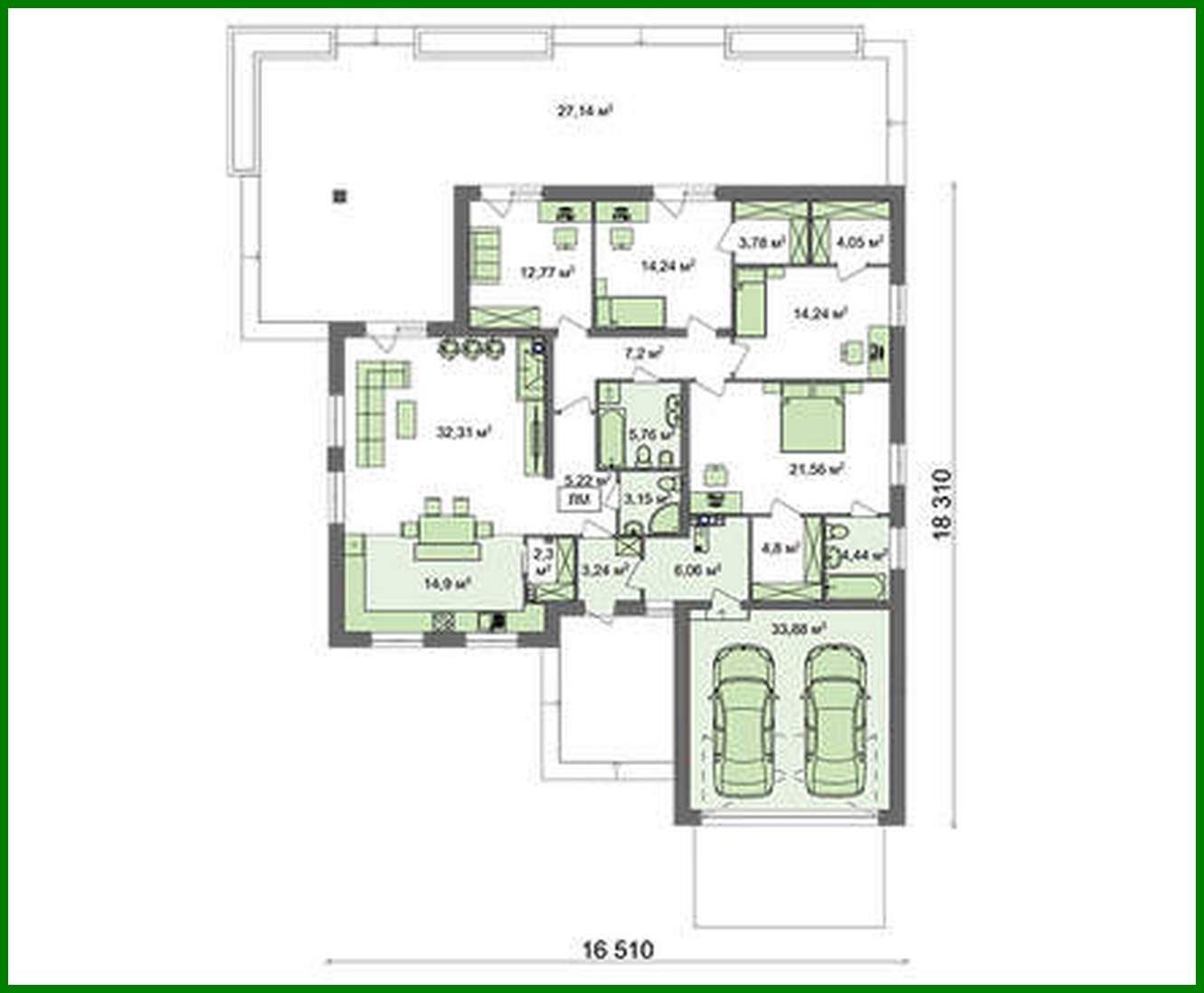
One-storey house project with a terrace

221 m² total area / 2379 ft² 1 floor 4 bedrooms 3 bathrooms
One-storey house project with a terrace
Click to view

Description

One-storey house project with a terrace Number of floors: 1 Total area: 221.04 m2 Living Area: 95.12 m2 House height: 7.05 m Ceiling Height: 2.80 m Roof Angle: 25 ° Roof area: 341.50 m2 Number of bedrooms: 4 Number of bathrooms: 3 Garage: Two-car garage Minimum plot size (length): 20.44 m Minimum plot size (width): 22.24 m Built-up area: 381.6 m2 Materials: Walls: aerated concrete blocks Ceiling: on wooden beams Roofing: ceramic tile, metal tile, cement-sand tile Foundation: monolithic slab

Interested in this plan?

Contact us to get full blueprints, construction estimate, or adapt this plan to your plot and needs.

Request more information

Visualization gallery