The project of a spacious house with a garage for two cars

263 m² total area / 2831 ft² 2 floors 4 bedrooms 2 bathrooms
The project of a spacious house with a garage for two cars
Click to view

Description

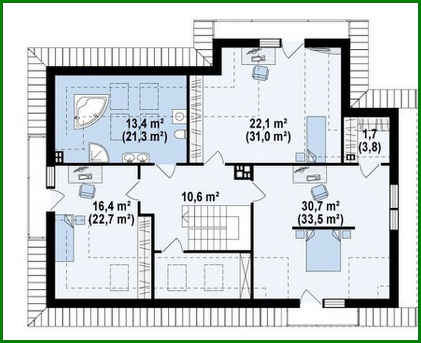
The project of a spacious house with a garage for two cars Number of floors: 2 Total area: 262.90 m2 Living Area: 197.20 m2 House height: 8.31 m Ceiling Height: 2.80 m Roof Angle: 37 ° Roof area: 260.00 m2 Cubic capacity: 648.00 m3 Number of bedrooms: 4 Number of bathrooms: 2 Garage: Two-car garage Minimum plot size (length): 22.64 m Minimum plot size (width): 23.24 m Built-up area: 162 m2 Materials: Walls: aerated concrete, ceramic blocks Overlap: monolithic overlap Roofing: ceramic tile, metal tile, cement-sand tile Foundation: monolithic tape band

Interested in this plan?

Contact us to get full blueprints, construction estimate, or adapt this plan to your plot and needs.

Request more information

Visualization gallery