Three-bedroom house project with frontal garage

252 m² total area / 2713 ft² 2 floors 5 bedrooms 3 bathrooms
Three-bedroom house project with frontal garage
Click to view

Description

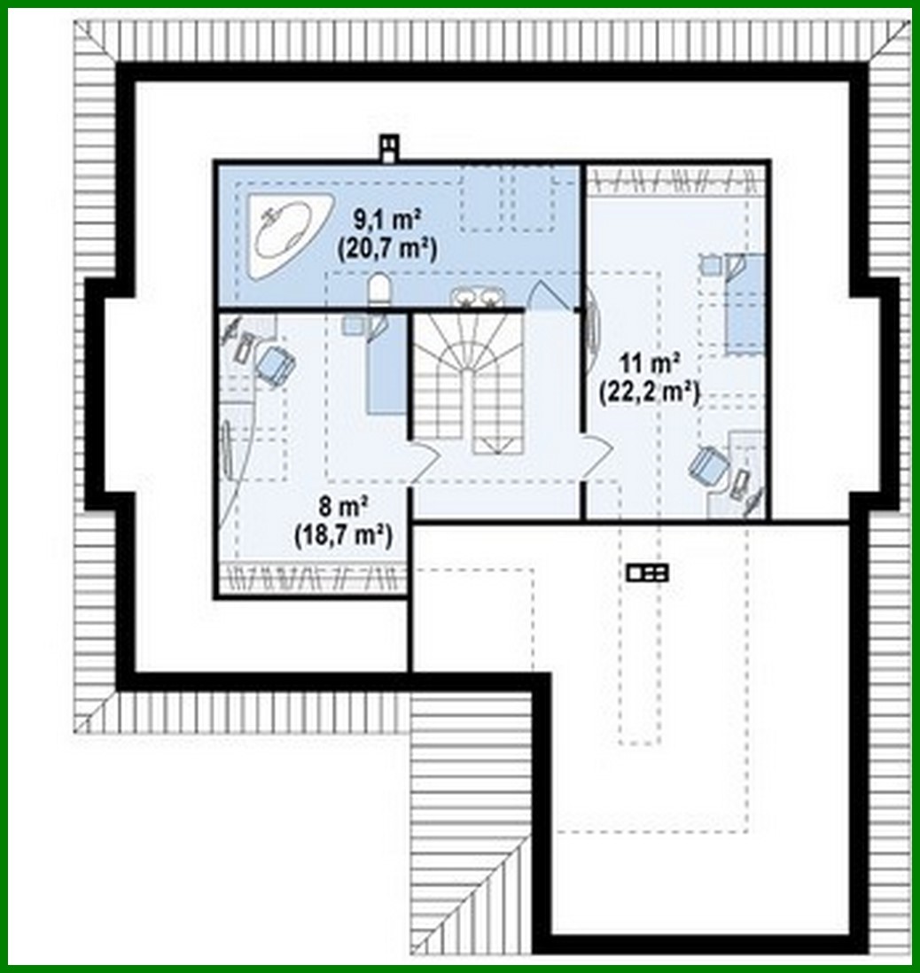
Three-bedroom house project with frontal garage Number of floors: 2 Total area: 251.60 m2 Living Area: 187.00 m2 House height: 6.79 m Ceiling Height: 2.80 m Roof Angle: 25 ° Roof area: 282.00 m2 Cubic capacity: 617.86 m3 Number of bedrooms: 5 Number of bathrooms: 3 Garage: Two-car garage Minimum plot size (length): 25.34 m Minimum plot size (width): 23.84 m Built-up area: 218 m2 Materials: Walls: aerated concrete, ceramic blocks Overlap: monolithic overlap Roofing: ceramic tile, metal tile, cement-sand tile Foundation: monolithic tape band

Interested in this plan?

Contact us to get full blueprints, construction estimate, or adapt this plan to your plot and needs.

Request more information

Visualization gallery