3 bedroom luxury residential project

194 m² total area / 2088 ft² 1 floor 3 bedrooms 2 bathrooms
3 bedroom luxury residential project
Click to view

Description

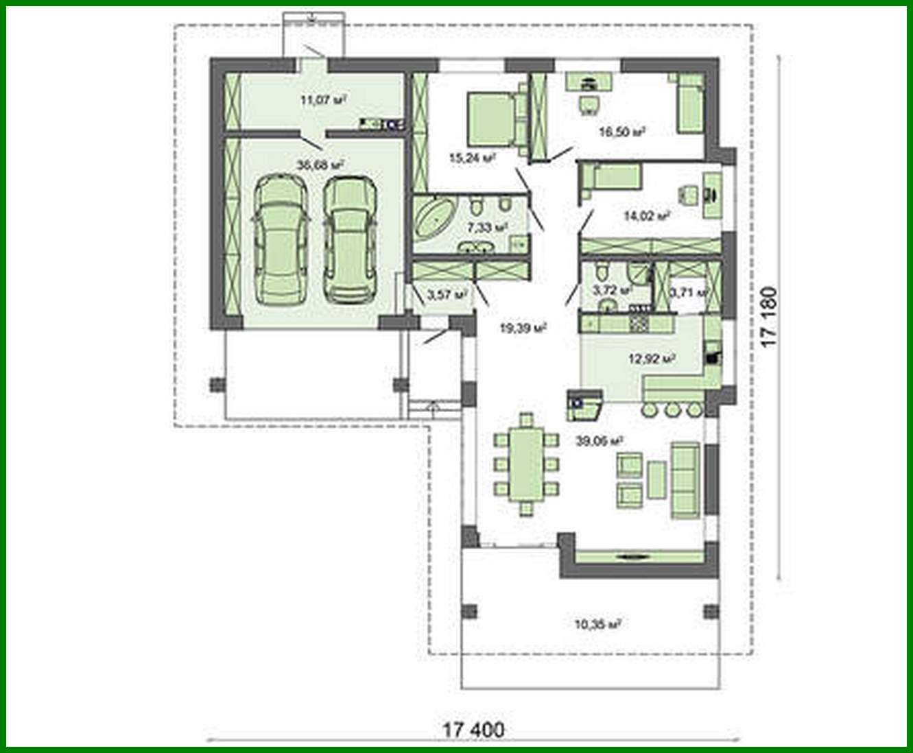
3 bedroom luxury residential project Number of floors: 1 Total area: 193.56 m2 Living Area: 45.76 m2 House height: 6.61 m Ceiling Height: 2.80 m Roof Angle: 25 ° Roof area: 369.00 m2 Cubic capacity: 852.00 m3 Number of bedrooms: 3 Number of bathrooms: 2 Garage: Two-car garage Minimum plot size (length): 25.00 m Minimum plot size (width): 25.50 m Built-up area: 224 m2 Materials: Walls: aerated concrete, ceramic blocks Ceiling: on wooden beams Roofing: metal tile, ceramic tile, bitumen Foundation: monolithic tape

Interested in this plan?

Contact us to get full blueprints, construction estimate, or adapt this plan to your plot and needs.

Request more information

Visualization gallery