High-tech stylish single-storey house project with pool and one-car garage

134 m² total area / 1442 ft² 1 floor 3 bedrooms 3 bathrooms
High-tech stylish single-storey house project with pool and one-car garage
Click to view

Description

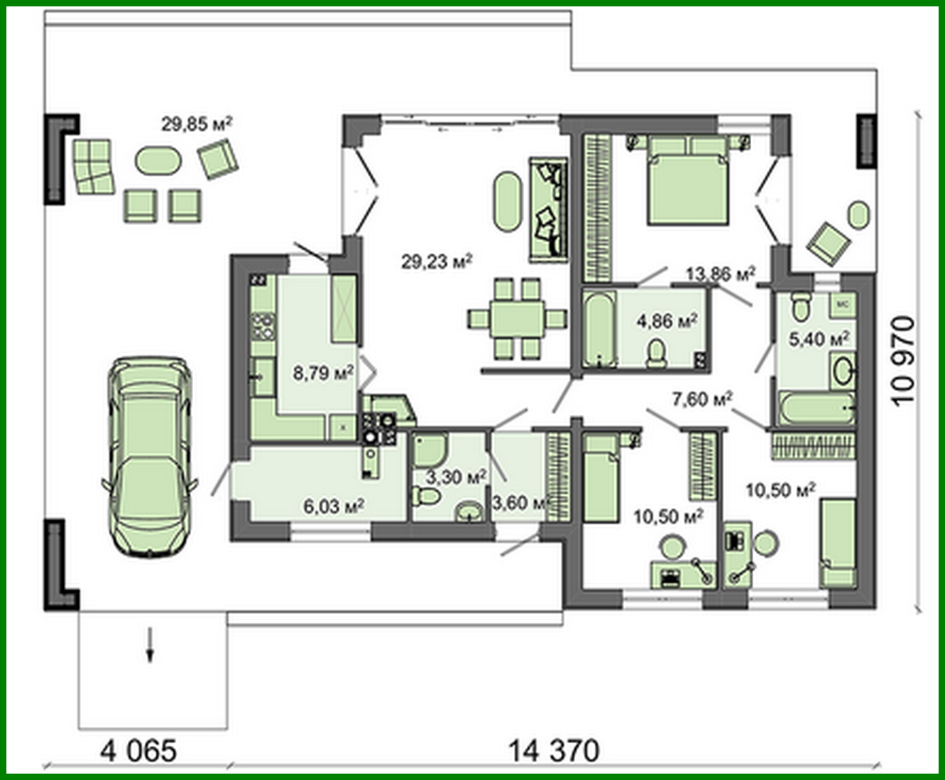
High-tech stylish single-storey house project with pool and one-car garage Number of floors: 1 Total area: 133.50 m2 Living Area: 64.10 m2 House height: 4.00 m Ceiling Height: 2.80 m Roof Angle: 3 ° Roof Area: 178.77 m2 Cubic capacity: 263.00 m3 Number of bedrooms: 3 Number of bathrooms: 3 Garage: Garage for one car Minimum plot size (length): 24.21 m Minimum plot size (width): 18.76 m Built-up area: 240.9 m2 Materials: Walls: aerated concrete blocks Overlap: monolithic overlap Roofing: PVC membrane Foundation: monolithic tape band

Interested in this plan?

Contact us to get full blueprints, construction estimate, or adapt this plan to your plot and needs.

Request more information

Visualization gallery