A chic house decorated with brick and wood

217 m² total area / 2336 ft² 2 floors 4 bedrooms 4 bathrooms
A chic house decorated with brick and wood
Click to view

Description

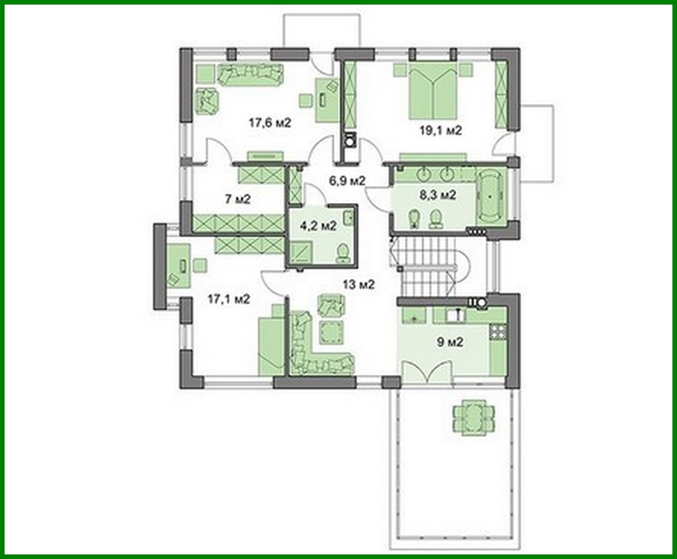
A chic house decorated with brick and wood Number of floors: 2 Total area: 217.40 m2 Living Area: 145.00 m2 House height: 8.30 m Ceiling Height: 2.80 m Roof Angle: 15 ° Roof Area: 169.50 m2 Cubic capacity: 632.00 m3 Number of bedrooms: 4 Number of bathrooms: 4 Garage: Garage for one car Built-up area: 162.5 m2 Materials: Walls: aerated concrete, ceramic blocks Overlap: monolithic overlap Roof: shingles Foundation: monolithic tape

Interested in this plan?

Contact us to get full blueprints, construction estimate, or adapt this plan to your plot and needs.

Request more information

Visualization gallery