The project of a magnificent house with a luxury garage and balcony

221 m² total area / 2379 ft² 2 floors 4 bedrooms 2 bathrooms
The project of a magnificent house with a luxury garage and balcony
Click to view

Description

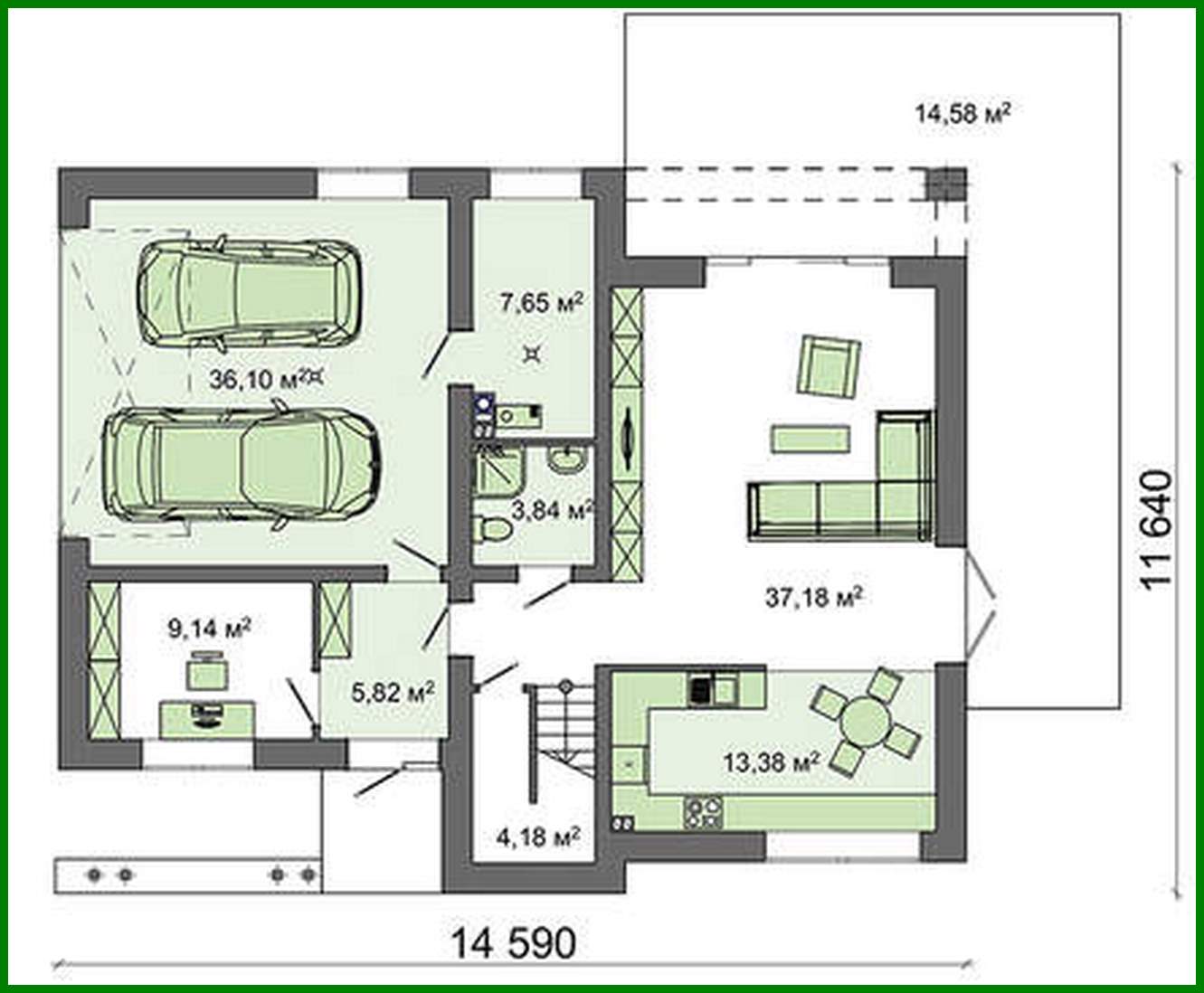
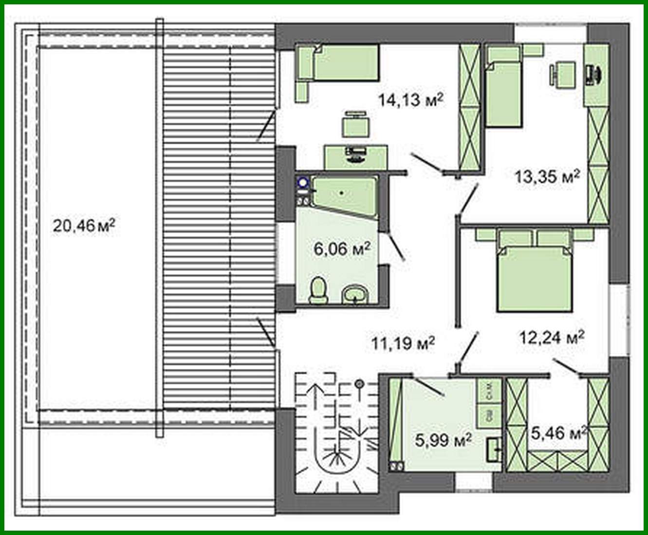
The project of a magnificent house with a luxury garage and balcony Number of floors: 2 Total area: 220.75 m2 Living Area: 86.04 m2 House height: 7.11 m Ceiling Height: 2.80 m Roof Angle: 3 ° Cubic capacity: 890.25 m3 Number of bedrooms: 4 Number of bathrooms: 2 Garage: Two-car garage Minimum plot size (length): 23.50 m Minimum plot size (width): 20.50 m Materials: Walls: aerated concrete, ceramic blocks Overlap: monolithic overlap Roofing: PVC membrane Foundation: monolithic tape

Interested in this plan?

Contact us to get full blueprints, construction estimate, or adapt this plan to your plot and needs.

Request more information

Visualization gallery