Original two-storey residential building

167 m² total area / 1798 ft² 2 floors 4 bedrooms 2 bathrooms
Original two-storey residential building
Click to view

Description

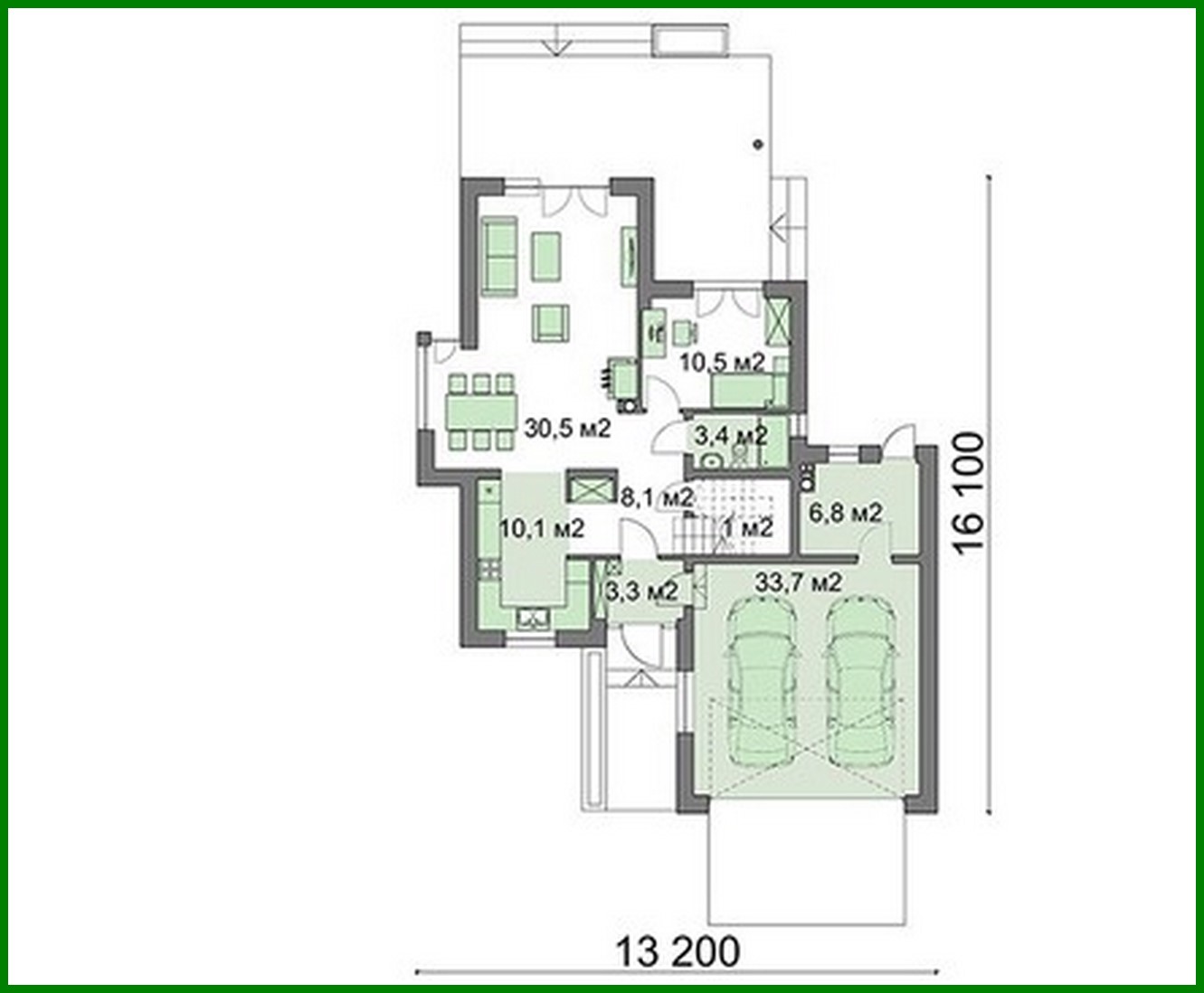
Original two-storey residential building Number of floors: 2 Total area: 166.70 m2 Living Area: 87.70 m2 House height: 7.20 m Ceiling Height: 2.80 m Roof Angle: 5 ° Roof Area: 163.60 m2 Cubic capacity: 508.40 m3 Number of bedrooms: 4 Number of bathrooms: 2 Garage: Two-car garage Minimum plot size (length): 21.50 m Minimum plot size (width): 24.50 m Materials: Walls: aerated concrete, ceramic blocks Overlap: monolithic overlap Roofing: PVC membrane Foundation: monolithic tape

Interested in this plan?

Contact us to get full blueprints, construction estimate, or adapt this plan to your plot and needs.

Request more information

Visualization gallery