Residential house with open verandahs under a gable roof

83 m² total area / 893 ft² 1 floor 3 bedrooms 2 bathrooms
Residential house with open verandahs under a gable roof
Click to view

Description

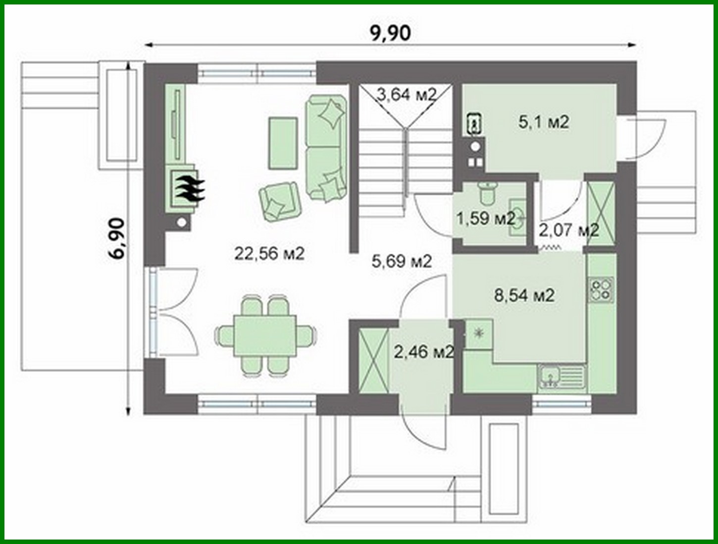
Residential house with open verandahs under a gable roof Number of floors: 2 Total area: 82.87 m2 Living Area: 66.80 m2 House height: 8.29 m Ceiling Height: 2.80 m Roof Angle: 45 ° Roof Area: 134.93 m2 Cubic capacity: 424.00 m3 Number of bedrooms: 3 Number of bathrooms: 2 Minimum plot size (length): 15.00 m Minimum plot size (width): 18.00 m Materials: Walls: aerated concrete, ceramic blocks Overlap: monolithic overlap Roofing: ceramic tile, metal tile, cement-sand tile Foundation: monolithic tape

Interested in this plan?

Contact us to get full blueprints, construction estimate, or adapt this plan to your plot and needs.

Request more information

Visualization gallery