Magnificent five-bedroom mansion with a spacious terrace on the second floor

262 m² total area / 2820 ft² 2 floors 5 bedrooms 3 bathrooms
Magnificent five-bedroom mansion with a spacious terrace on the second floor
Click to view

Description

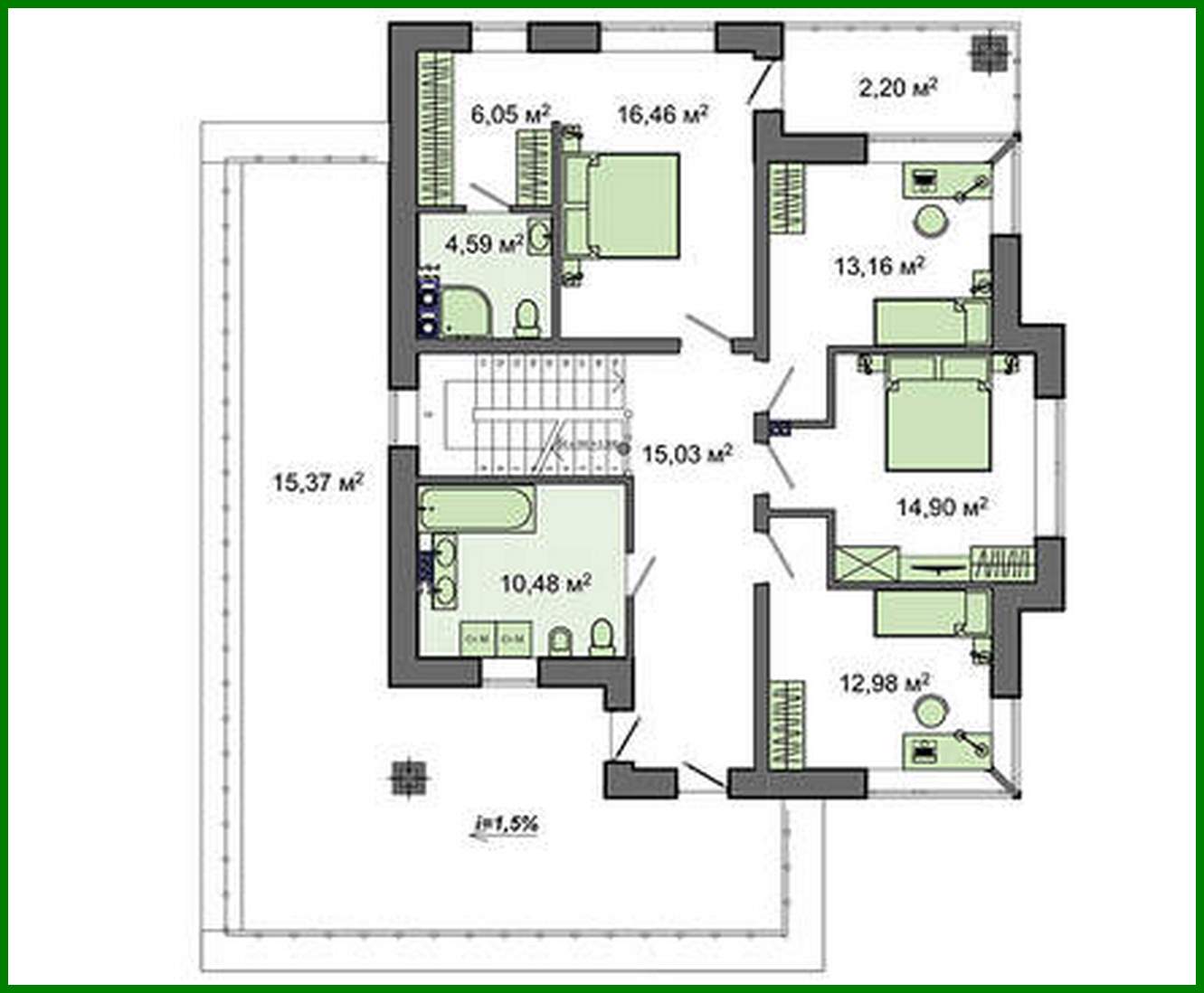
Magnificent five-bedroom mansion with a spacious terrace on the second floor Number of floors: 2 Total area: 262.27 m2 Living Area: 107.77 m2 House height: 9.79 m Ceiling Height: 2.80 m Roof Angle: 25 ° Roof area: 225.50 m2 Number of bedrooms: 5 Number of bathrooms: 3 Garage: Two-car garage Minimum plot size (length): 24.10 m Minimum plot size (width): 22.30 m Built-up area: 245.95 m2 Materials: Walls: brick Overlap: monolithic overlap Roofing: metal tile, ceramic tile, bitumen Foundation: monolithic tape

Interested in this plan?

Contact us to get full blueprints, construction estimate, or adapt this plan to your plot and needs.

Request more information

Visualization gallery