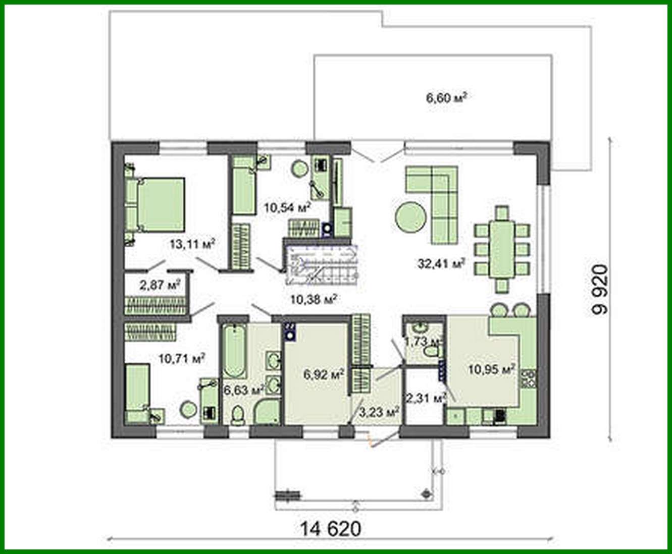
Beautiful house building with a spacious living room

192 m² total area / 2067 ft² 1 floor 3 bedrooms 2 bathrooms
Beautiful house building with a spacious living room
Click to view

Description

Beautiful house building with a spacious living room Number of floors: 1 Total area: 192.45 m2 Living Area: 66.77 m2 House height: 7.43 m Ceiling Height: 2.80 m Roof Angle: 35 ° Roof area: 235.00 m2 Number of bedrooms: 3 Number of bathrooms: 2 Minimum plot size (length): 22.50 m Minimum plot size (width): 18.00 m Built-up area: 222.55 m2 Materials: Walls: aerated concrete blocks Ceiling: on wooden beams Roofing: metal tile, ceramic tile, bitumen Foundation: monolithic tape

Interested in this plan?

Contact us to get full blueprints, construction estimate, or adapt this plan to your plot and needs.

Request more information

Visualization gallery