One-floor Three-Bedroom Cottage

138 m² total area / 1485 ft² 1 floor 3 bedrooms 2 bathrooms
One-floor Three-Bedroom Cottage
Click to view

Description

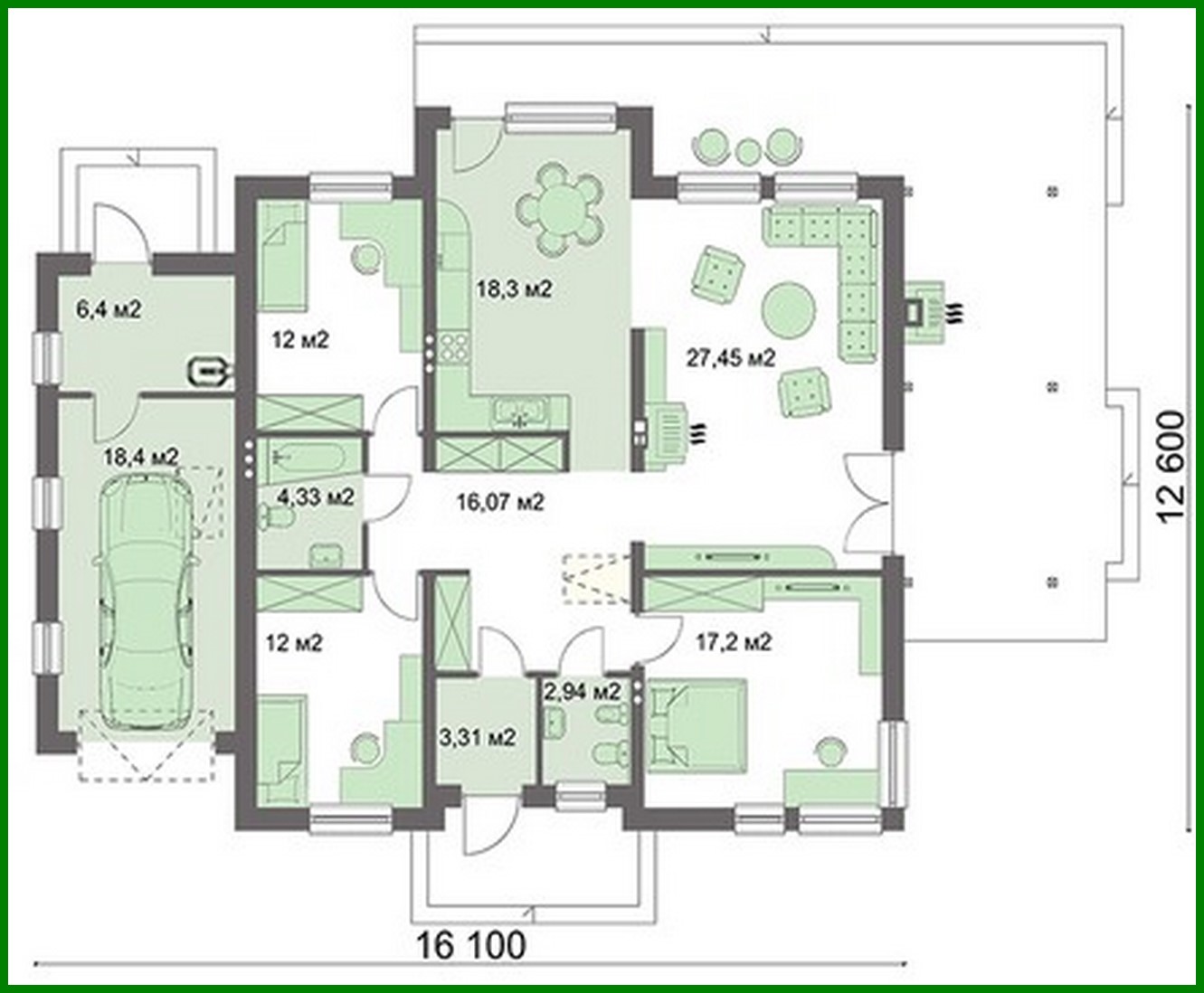
417. One-floor Three-Bedroom Cottage Number of floors: 1 Total area: 138.40 m2 Living Area: 103.02 m2 House height: 5.50 m Ceiling Height: 2.80 m Roof Angle: 20 ° Number of bedrooms: 3 Number of bathrooms: 2 Garage: Garage for one car Minimum plot size (length): 24.10 m Minimum plot size (width): 20.60 m Materials: Walls: aerated concrete, ceramic blocks Ceiling: on wooden beams Roofing: ceramic tile, metal tile, cement-sand tile Foundation: monolithic tape

Interested in this plan?

Contact us to get full blueprints, construction estimate, or adapt this plan to your plot and needs.

Request more information

Visualization gallery