Two-story house with a spacious terrace

185 m² total area / 1991 ft² 2 floors 3 bedrooms 2 bathrooms
Two-story house with a spacious terrace
Click to view

Description

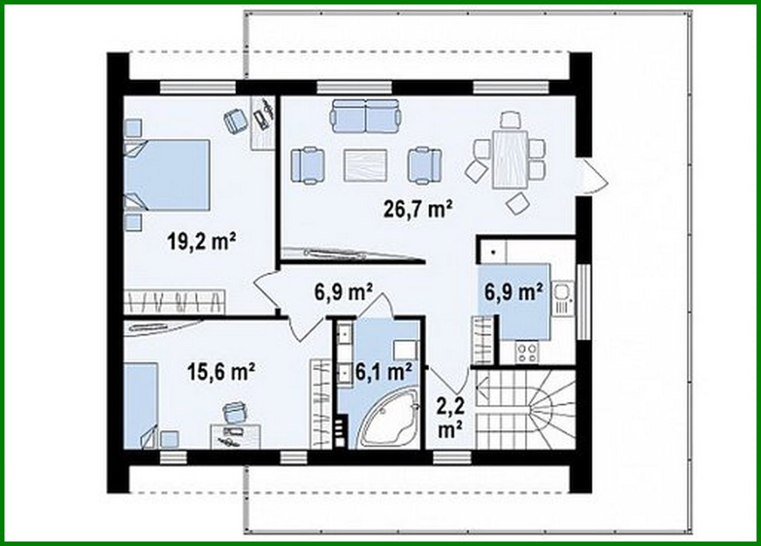
Two-story house with a spacious terrace Number of floors: 2 Total area: 185.00 m2 Living Area: 162.00 m2 House height: 8.27 m Ceiling Height: 2.80 m Roof Angle: 20 ° Roof area: 156.00 m2 Number of bedrooms: 3 Number of bathrooms: 2 Garage: Garage for one car Minimum plot size (length): 21.00 m Minimum plot size (width): 17.20 m Materials: Walls: aerated concrete, ceramic blocks Overlap: monolithic overlap Roofing: ceramic tile, metal tile, cement-sand tile Foundation: monolithic tape band

Interested in this plan?

Contact us to get full blueprints, construction estimate, or adapt this plan to your plot and needs.

Request more information

Visualization gallery