Two-story mansion with a spacious gym

219 m² total area / 2357 ft² 2 floors 3 bedrooms 2 bathrooms
Two-story mansion with a spacious gym
Click to view

Description

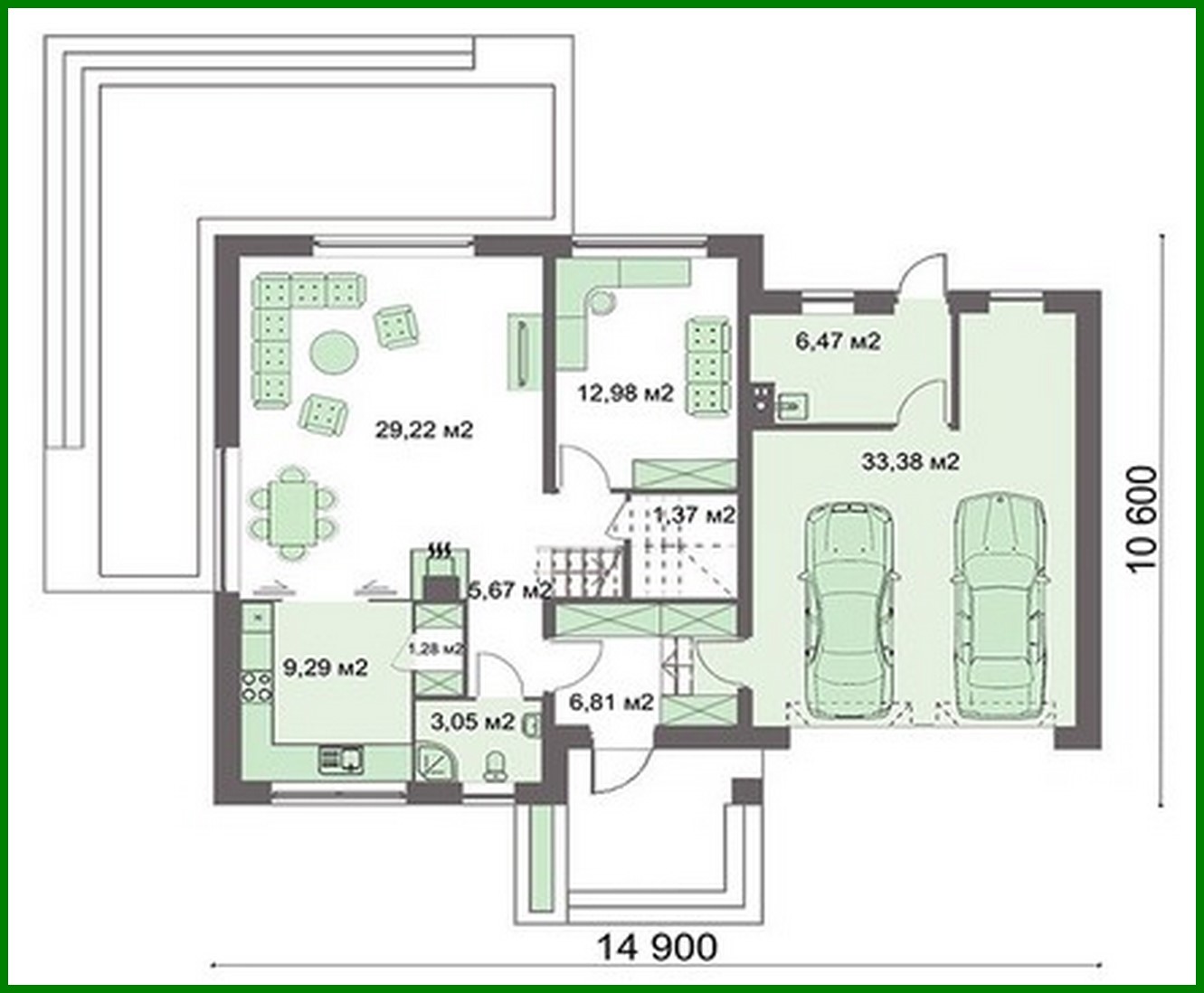
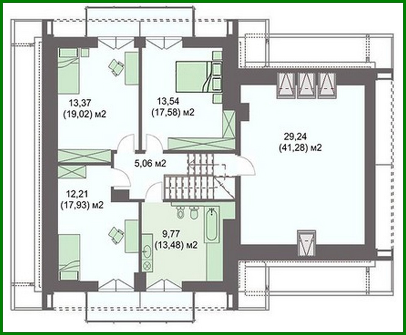
Two-story mansion with a spacious gym Number of floors: 2 Total area: 218.81 m2 Living Area: 130.09 m2 House height: 8.49 m Ceiling Height: 2.80 m Roof Angle: 40 ° Cubic capacity: 533.00 m3 Number of bedrooms: 3 Number of bathrooms: 2 Garage: Two-car garage Minimum plot size (length): 18.60 m Minimum plot size (width): 22.90 m Built-up area: 146.99 m2 Materials: Walls: aerated concrete, ceramic blocks Overlap: monolithic overlap Roofing: ceramic tile, metal tile, cement-sand tile Foundation: monolithic tape

Interested in this plan?

Contact us to get full blueprints, construction estimate, or adapt this plan to your plot and needs.

Request more information

Visualization gallery