Two-story residential building with comfortable private rooms

288 m² total area / 3100 ft² 2 floors 4 bedrooms 3 bathrooms
Two-story residential building with comfortable private rooms
Click to view

Description

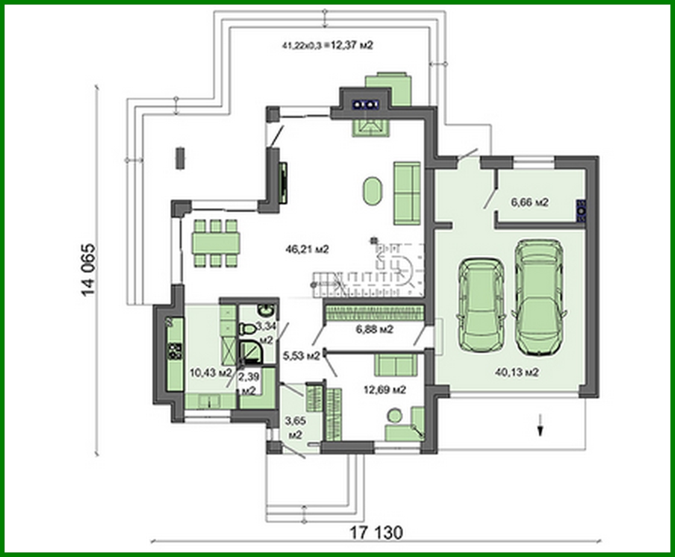
Two-story residential building with comfortable private rooms Number of floors: 2 Total area: 287.73 m2 Living Area: 163.59 m2 House height: 8.98 m Ceiling Height: 2.80 m Roof Angle: 24 ° Roof Area: 246.39 m2 Cubic capacity: 1178.10 m3 Number of bedrooms: 4 Number of bathrooms: 3 Garage: Two-car garage Minimum plot size (length): 21.40 m Minimum plot size (width): 25.00 m Built-up area: 271.73 m2 Materials: Walls: aerated concrete blocks Overlap: monolithic overlap Roofing: metal tile, ceramic tile, bitumen Foundation: monolithic tape

Interested in this plan?

Contact us to get full blueprints, construction estimate, or adapt this plan to your plot and needs.

Request more information

Visualization gallery