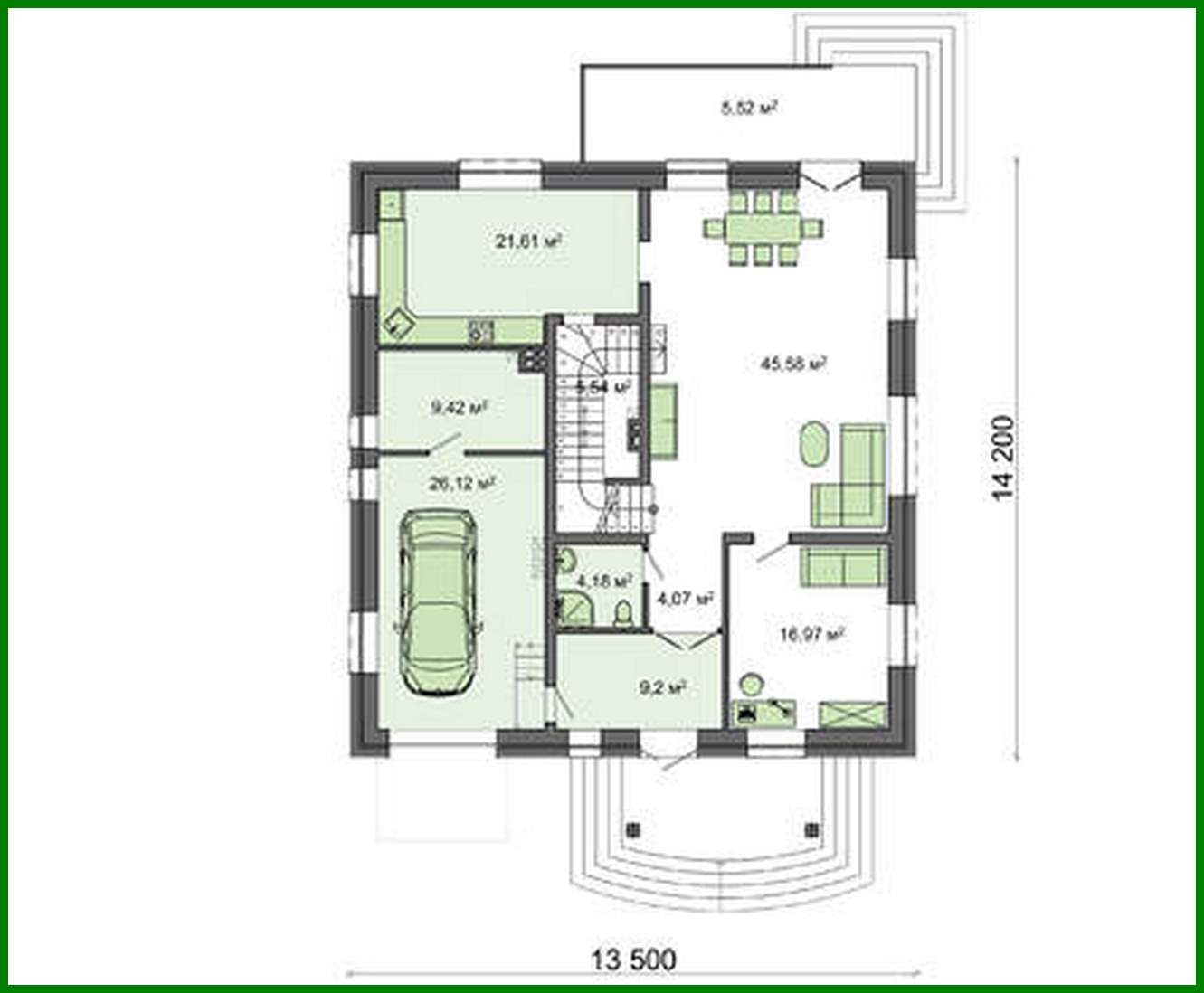
Project of a picturesque residential building with chocolate decor

277 m² total area / 2982 ft² 2 floors 4 bedrooms 2 bathrooms
Project of a picturesque residential building with chocolate decor
Click to view

Description

Project of a picturesque residential building with chocolate decor Number of floors: 2 Total area: 276.83 m2 Living Area: 128.64 m2 House height: 11.46 m Ceiling Height: 3.00 m Roof Angle: 45 ° Roof area: 356.50 m2 Number of bedrooms: 4 Number of bathrooms: 2 Garage: Garage for one car Minimum plot size (length): 22.00 m Minimum plot size (width): 23.00 m Built-up area: 247.74 m2 Materials: Walls: ceramic blocks Overlap: floor slabs Roofing: ceramic tiles Foundation: monolithic tape band

Interested in this plan?

Contact us to get full blueprints, construction estimate, or adapt this plan to your plot and needs.

Request more information

Visualization gallery