Beautiful apartment building with an unusual garage solution

173 m² total area / 1862 ft² 2 floors 4 bedrooms 2 bathrooms
Beautiful apartment building with an unusual garage solution
Click to view

Description

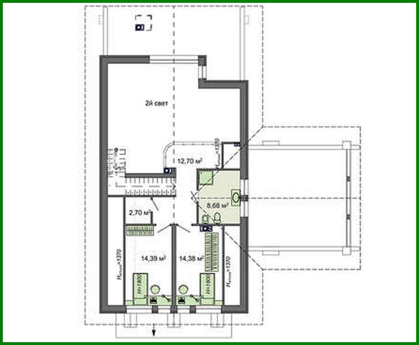
Beautiful apartment building with an unusual garage solution Number of floors: 2 Total area: 173.40 m2 Living Area: 89.35 m2 House height: 7.17 m Ceiling Height: 2.80 m Roof Angle: 35 ° Roof area: 335.00 m2 Cubic capacity: 511.96 m3 Number of bedrooms: 4 Number of bathrooms: 2 Minimum plot size (length): 24.00 m Minimum plot size (width): 17.00 m Built-up area: 254.2 m2 Materials: Walls: aerated concrete blocks Overlap: monolithic overlap Roofing: metal tile, ceramic tile, bitumen Foundation: monolithic tape

Interested in this plan?

Contact us to get full blueprints, construction estimate, or adapt this plan to your plot and needs.

Request more information

Visualization gallery