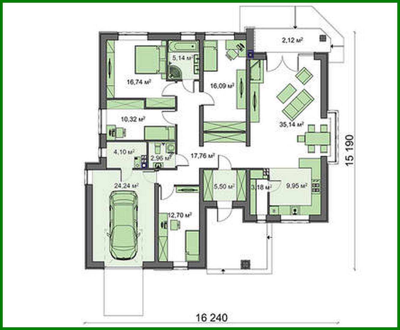
One-storey cottage project with a garage and 4 comfortable bedrooms

166 m² total area / 1787 ft² 1 floor 4 bedrooms 2 bathrooms
One-storey cottage project with a garage and 4 comfortable bedrooms
Click to view

Description

One-storey cottage project with a garage and 4 comfortable bedrooms Number of floors: 1 Total area: 166.05 m2 Living Area: 90.99 m2 House height: 6.05 m Ceiling Height: 2.80 m Roof Angle: 30 ° Roof area: 285.00 m2 Cubic capacity: 716.39 m3 Number of bedrooms: 4 Number of bathrooms: 2 Garage: Garage for one car Minimum plot size (length): 22.94 m Minimum plot size (width): 23.24 m Built-up area: 233.46 m2 Materials: Walls: aerated concrete blocks Ceiling: on wooden beams Roofing: metal tile, ceramic tile, bitumen Foundation: monolithic tape band

Interested in this plan?

Contact us to get full blueprints, construction estimate, or adapt this plan to your plot and needs.

Request more information

Visualization gallery