Elegant residential building with cozy balconies

176 m² total area / 1894 ft² 2 floors 3 bedrooms 2 bathrooms
Elegant residential building with cozy balconies
Click to view

Description

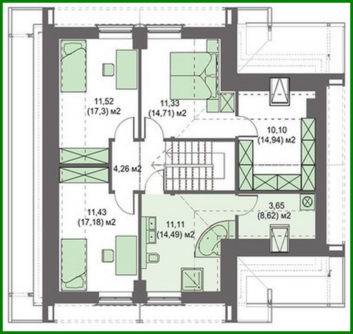
Elegant residential building with cozy balconies Number of floors: 2 Total area: 176.38 m2 Living Area: 89.88 m2 House height: 8.00 m Ceiling Height: 2.80 m Roof Angle: 40 ° Cubic capacity: 424.00 m3 Number of bedrooms: 3 Number of bathrooms: 2 Garage: Garage for one car Minimum plot size (length): 19.00 m Minimum plot size (width): 20.00 m Materials: Walls: aerated concrete, ceramic blocks Overlap: monolithic overlap Roofing: ceramic tile, metal tile, cement-sand tile Foundation: monolithic tape

Interested in this plan?

Contact us to get full blueprints, construction estimate, or adapt this plan to your plot and needs.

Request more information

Visualization gallery