Project of a small castle with a garage for 2 cars

219 m² total area / 2357 ft² 2 floors 4 bedrooms 3 bathrooms
Project of a small castle with a garage for 2 cars
Click to view

Description

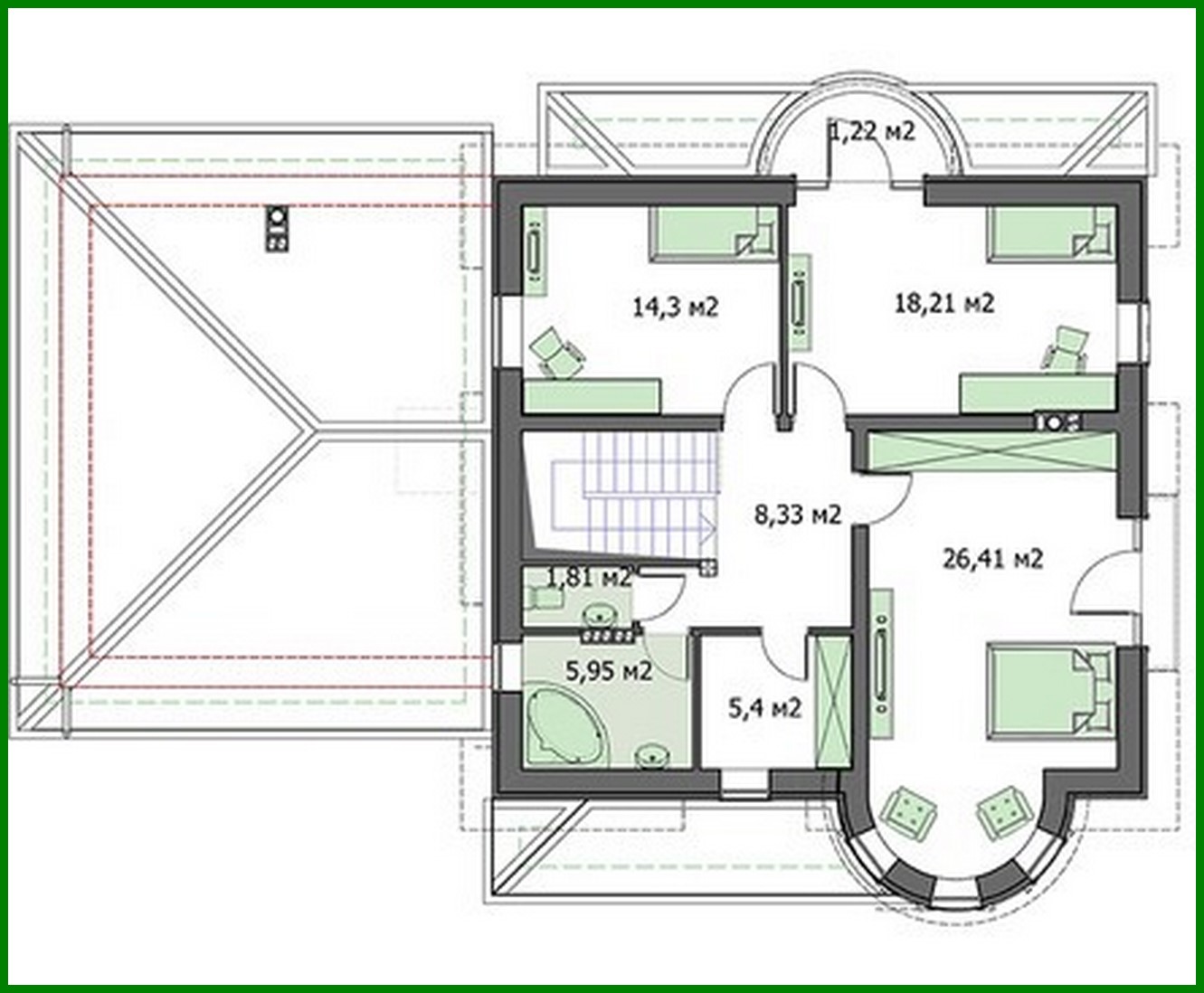
Project of a small castle with a garage for 2 cars Number of floors: 2 Total area: 219.12 m2 Living Area: 100.25 m2 House height: 11.54 m Ceiling Height: 2.80 m Roof Angle: 45 ° Roof Area: 303.37 m2 Number of bedrooms: 4 Number of bathrooms: 3 Garage: Two-car garage Minimum plot size (length): 21.50 m Minimum plot size (width): 25.50 m Materials: Walls: aerated concrete blocks Overlap: monolithic overlap Roofing: ceramic tile, metal tile, cement-sand tile Foundation: monolithic tape

Interested in this plan?

Contact us to get full blueprints, construction estimate, or adapt this plan to your plot and needs.

Request more information

Visualization gallery