Project of a two-story house for a narrow plot

181 m² total area / 1948 ft² 2 floors 3 bedrooms 2 bathrooms
Project of a two-story house for a narrow plot
Click to view

Description

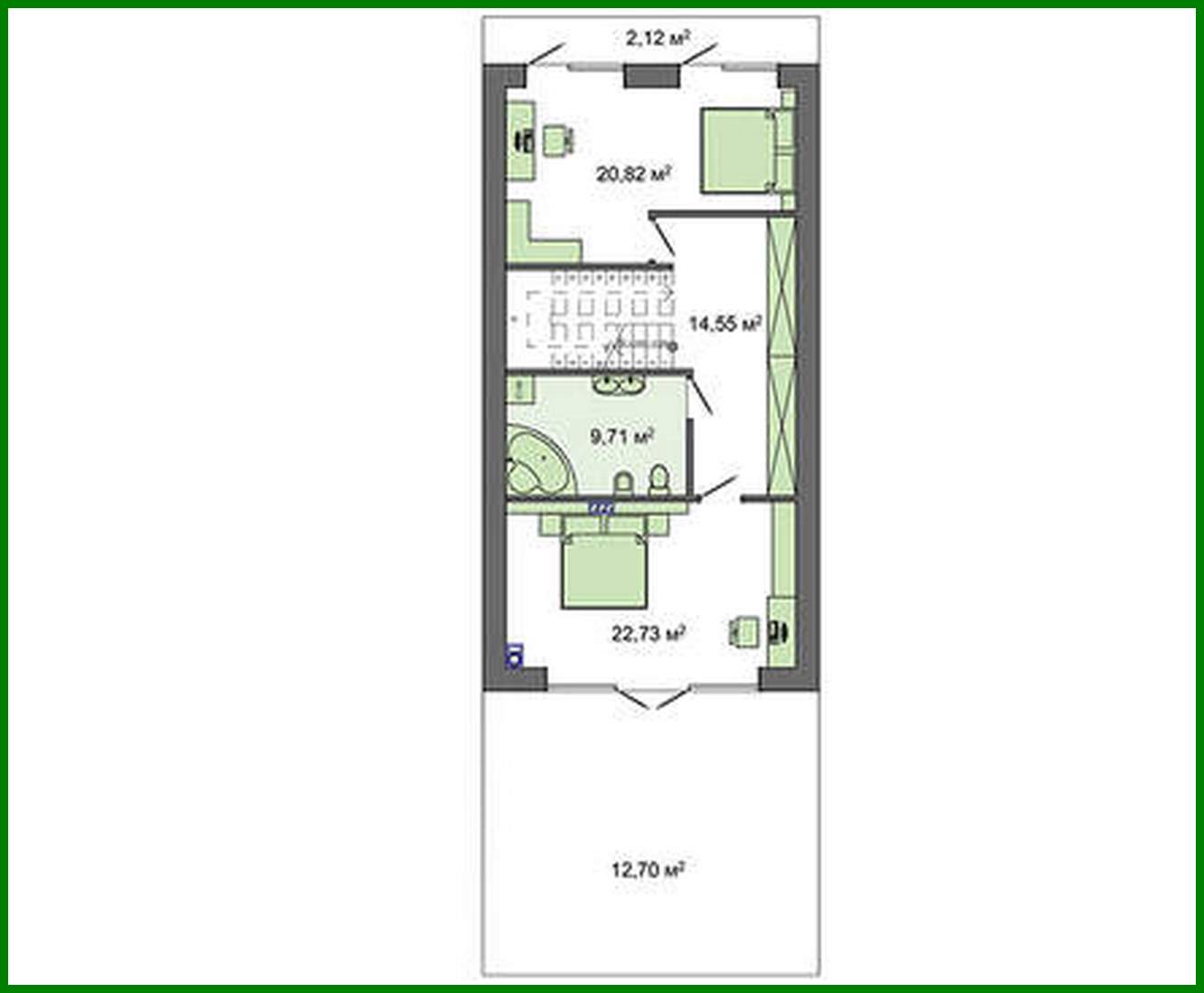
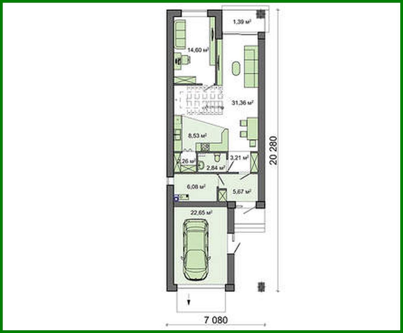
Project of a two-story house for a narrow plot Number of floors: 2 Total area: 181.22 m2 Living Area: 89.51 m2 House height: 7.70 m Ceiling Height: 2.80 m Roof Angle: 3 ° Roof area: 94.30 m2 Cubic capacity: 345.00 m3 Number of bedrooms: 3 Number of bathrooms: 2 Garage: Garage for one car Minimum plot size (length): 15.50 m Minimum plot size (width): 29.50 m Built-up area: 121.3 m2 Materials: Walls: aerated concrete, ceramic blocks Overlap: monolithic overlap Roofing: PVC membrane Foundation: monolithic tape

Interested in this plan?

Contact us to get full blueprints, construction estimate, or adapt this plan to your plot and needs.

Request more information

Visualization gallery