Modern project of a house with an attic for a narrow plot

213 m² total area / 2293 ft² 1 floor 4 bedrooms 3 bathrooms
Modern project of a house with an attic for a narrow plot
Click to view

Description

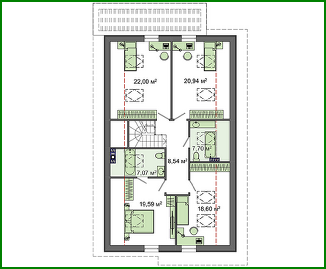
Modern project of a house with an attic for a narrow plot Number of floors: 2 Total area: 212.77 m2 Living Area: 130.80 m2 House height: 8.09 m Ceiling Height: 2.80 m Roof Angle: 43 ° Roof area: 212.00 m2 Number of bedrooms: 4 Number of bathrooms: 3 Garage: Garage for one car Minimum plot size (length): 24.00 m Minimum plot size (width): 17.00 m Built-up area: 174.71 m2 Materials: Walls: aerated concrete blocks Overlap: monolithic overlap Roofing: metal tile, ceramic tile, bitumen Foundation: monolithic tape band

Interested in this plan?

Contact us to get full blueprints, construction estimate, or adapt this plan to your plot and needs.

Request more information

Visualization gallery