Project of a two-story cottage in bright colors with a spacious terrace

217 m² total area / 2336 ft² 2 floors 4 bedrooms 3 bathrooms
Project of a two-story cottage in bright colors with a spacious terrace
Click to view

Description

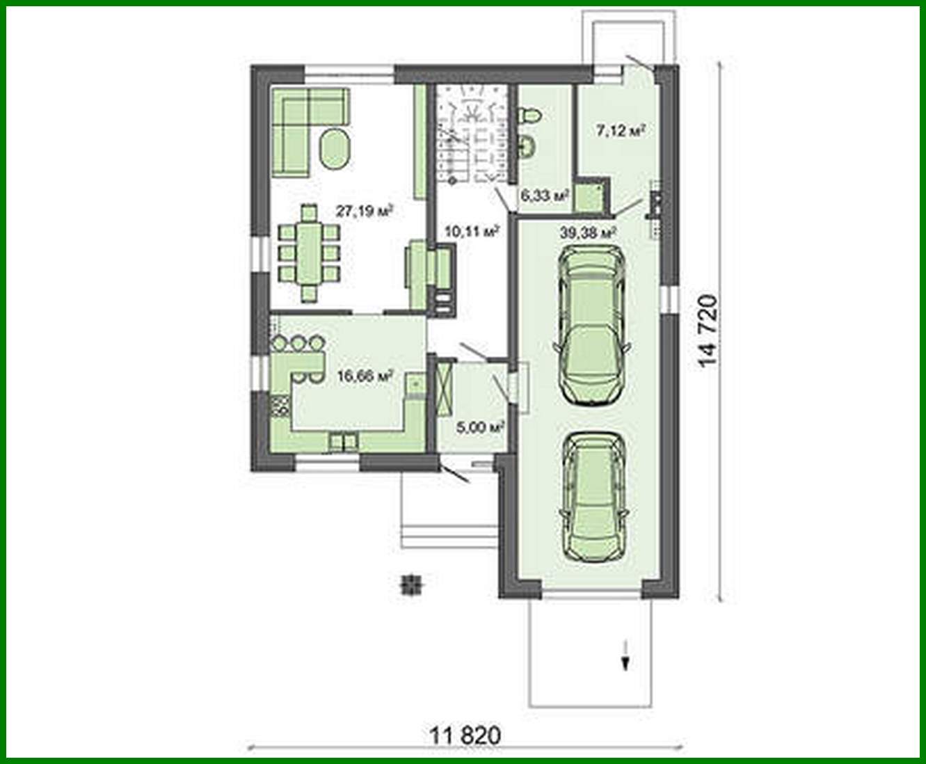
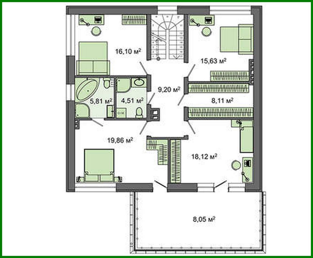
369. Project of a two-story cottage in bright colors with a spacious terrace Number of floors: 2 Total area: 217.18 m2 Living Area: 96.90 m2 House height: 9.19 m Ceiling Height: 2.80 m Roof Angle: 22 ° Roof area: 186.00 m2 Number of bedrooms: 4 Number of bathrooms: 3 Garage: Two-car garage Minimum plot size (length): 20.00 m Minimum plot size (width): 23.00 m Built-up area: 169.6 m2 Materials: Walls: aerated concrete, brick Overlap: monolithic overlap Roof: shingles Foundation: monolithic tape band

Interested in this plan?

Contact us to get full blueprints, construction estimate, or adapt this plan to your plot and needs.

Request more information

Visualization gallery